Bénéficiez des services de nos partenaires locaux soigneusement sélectionnés
pour vous accompagner dans votre parcours d'achat immobilier

Appartement

— Strasbourg 67200 —
189 000 €
58 m²
3 pièces
balcon/terrasseascenseur

Nos partenaires locaux
67200 - STRASBOURG KOENIGSHOFFEN - QUARTIER CALME - 3 PIÈCES - 2 CHAMBRES - APPARTEMENT RECENT - 58.62 M² AVEC TERRASSE AU CALME À L'ARRIÈRE -

Aude Secci effiCity, l'agence qui estime votre bien , vous propose ce charmant appartement lumineux aux portes d'Eckbolsheim.

A deux pas des tram et arrêt de bus ainsi que des commerces et écoles, vous trouverez ce bien situé au 1er étage avec ascenseur dans une copropriété récente construite en 2020.

Il saura vous séduire par sa modernité et sa luminosité ainsi que par sa terrasse située au calme à l'arrière, vous offrant un espace extérieur privilégié pour profiter de moments de détente en toute tranquillité.

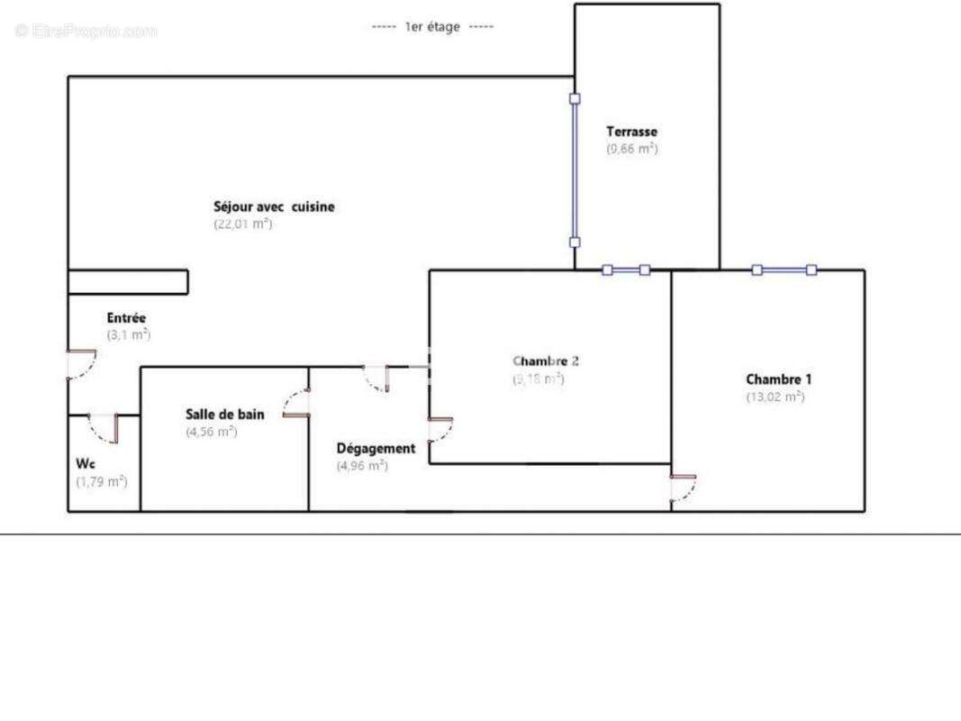
L'appartement comprend :

- une entrée aménagée avec placard,
- une cuisine entièrement équipée et fonctionnelle ouverte sur un séjour de 22m²,
- une terrasse de 9,66m² orientée ouest,
- un WC séparé,
- une salle de bain avec espace lave linge
- 2 chambres de 9 et 13m²

Chauffage collectif au gaz
Taxe foncière : 1019 €

Ne manquez pas cette opportunité de devenir propriétaire de ce bien d'exception à Strasbourg.
Contactez-moi dès maintenant pour organiser une visite;
Les informations sur les risques auxquels ce bien est exposé sont disponibles sur le site Georisque : georisques. gouv. fr
Aude Secci - EI - est Agent Commercial mandataire en immobilier, immatriculé au Registre Spécial des Agents Commerciaux du Tribunal de Commerce de Saverne sous le n°895023216.
Siège social du mandant : effiCity, 48 avenue de Villiers - 75017 PARIS - Société par Actions Simplifiée, société au capital de 132 373,05 euros, immatriculée au RCS Paris 497 617 746 et titulaire de la Carte professionnelle CPI 75[Coordonnées masquées]02 025 - CCI Paris IDF - Caisse de Garantie : GALIAN Assurances 89 rue de la Boétie 75008 Paris
Voir plus

Référence: 192505
Bien en copropriété. Nombre de lots : 76. Charges de copropriété : 250 €.
Honoraires d'agence de 5% à la charge de l'acquéreur
Barème des honoraires
DPE
A
B
C
D
E
F
G
GES
A
B
C
D
E
F
G

Prêt immobilier

Vous souhaitez connaître votre capacité d’emprunt et trouver le meilleur crédit immobilier ?
Réaliser une simulation gratuite

Appartement à STRASBOURG
Appartement à STRASBOURG
Appartement à STRASBOURG
Appartement à STRASBOURG
Appartement à STRASBOURG
Appartement à STRASBOURG
Appartement à STRASBOURG
Appartement à STRASBOURG
Ce site est protégé par reCAPTCHA la Politique de confidentialité et les Conditions d’utilisation de Google s’appliquent.
Obtenir un prêt immobilier au meilleur taux ?

En poursuivant votre navigation sans modifier vos paramètres, vous acceptez l'utilisation de cookies susceptibles de réaliser des statistiques de visite. Cliquez ici pour plus d'informations