Appartement t2 aleria avec terrasse

— Aleria 20270 —
135 000 €
41 m²
2 pièces
parkingbalcon/terrasseascenseur

Appartement T2 Lumineux avec Terrasse et Vue Dégagée à Aléria

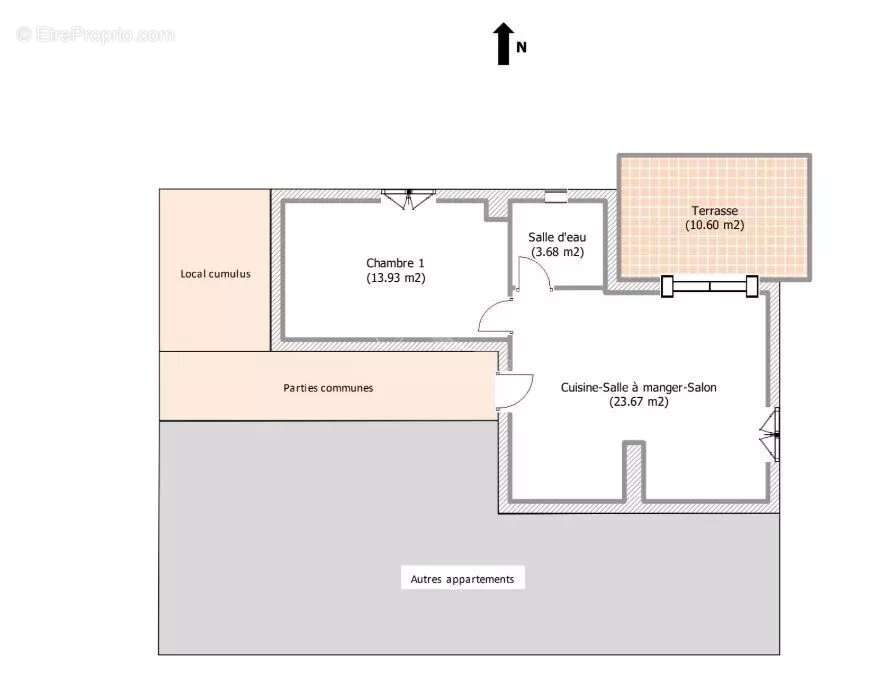
Situé au dernier étage avec ascenseur, cet appartement T2 moderne de 41 m² au centre d'Aleria vous séduira par sa luminosité et son agencement optimisé. Construit en 2012 avec des matériaux de qualité, il offre tout le confort nécessaire dans un cadre contemporain.

Points Forts :

• Superficie : 41 m² bien agencés pour un confort optimal

• Terrasse Spacieuse : Profitez d’une grande terrasse avec une vue dégagée, idéale pour vos moments de détente ou repas en extérieur

• Luminosité : Appartement offrant une belle luminosité naturelle

• Place de parking privative


Atouts Pratiques :

• Ascenseur : Accès facilité au 3ème étage, idéal pour tous les âges

• Climatisé

• Construction Récente : Bâtiment de 2012, bénéficiant de normes modernes de construction

Actuellement loué, jusqu'en 2027 (620€/mois).

Localisation :

Situé dans un quartier calme et agréable d’Aléria, à proximité des commodités locales et des transports. Ce bien est parfait pour une résidence principale ou un investissement locatif.
Ne manquez pas cette opportunité d’acquérir un appartement alliant modernité, confort et belle vue. Pour toute information complémentaire ou pour organiser une visite, contactez-nous dès aujourd’hui !
Voir plus

Référence: 00275JLV
DPE
A
B
C
D
E
F
G
GES
A
B
C
D
E
F
G

Prêt immobilier

Vous souhaitez connaître votre capacité d’emprunt et trouver le meilleur crédit immobilier ?
Réaliser une simulation gratuite

Appartement à ALERIA
Appartement à ALERIA
Appartement à ALERIA
Appartement à ALERIA
Appartement à ALERIA
Appartement à ALERIA
Appartement à ALERIA
Ce site est protégé par reCAPTCHA la Politique de confidentialité et les Conditions d’utilisation de Google s’appliquent.
Obtenir un prêt immobilier au meilleur taux ?

En poursuivant votre navigation sans modifier vos paramètres, vous acceptez l'utilisation de cookies susceptibles de réaliser des statistiques de visite. Cliquez ici pour plus d'informations