Bénéficiez des services de nos partenaires locaux soigneusement sélectionnés
pour vous accompagner dans votre parcours d'achat immobilier

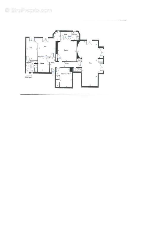
Appartement 170m² à vichy

— Vichy 03200 —
284 000 €
170 m²
5 pièces
ascenseur

Nos partenaires locaux
L'agence APPARTOIT vous propose :

Un appartement de 170 m², situé quartier opéra, l'une des adresses les plus prestigieuses de Vichy. Ses volumes généreux et sa luminosité en font un bien rare, offrant plusieurs possibilités d'agencement.

Il peut être aménagé de 2 façons grâce à 2 entrées indépendantes existantes :
- un grand appartement familial de 170m² avec 1 suite parentale, 2 chambres, un salle de bain, un bureau et une cuisine ouverte sur un séjour de 47 m² OU- un studio de 22m² avec salle d'eau + un appartement principal de 146 m² comprenant 1 suite parentale, une chambre, un bureau, une salle de bain et un cuisine ouverte sur un séjour de 47 m².

Ses prestations techniques ajoutent au confort : menuiseries bois double vitrage 16mm avec volets roulants électriques Bubendorff, chauffage électrique récents et qualitatifs, ballon d'eau chaude neuf, électricité refaite en 2022, fibre installée et cuisine existante équipée.

Un devis concernant les travaux de rafraichissement est déjà disponible pour adapter l'ensemble à vos envies !
Une cave complète ce bien idéalement situé en coeur de ville.

? Pour organiser une visite : Sonia Rolland [Coordonnées masquées] – Agence APPARTOIT [Coordonnées masquées]

Honoraires inclus de 4.41% TTC à la charge de l'acquéreur. Prix hors honoraires 272 000 €. Dans une copropriété de 138 lots. Aucune procédure n'est en cours. Classe énergie E, Classe climat B Montant moyen estimé des dépenses annuelles d'énergie pour un usage standard, établi à partir des prix de l'énergie de l'année 2021 : entre 2800.00 et 3830.00 €. Les informations sur les risques auxquels ce bien est exposé sont disponibles sur le site Géorisques : georisques.gouv.fr.

Votre conseiller APPARTOIT : Sonia ROLLAND
Agent commercial (Entreprise individuelle)
RSAC 944395995
Voir plus

Référence: 824-APPARTOIT
Bien en copropriété. Nombre de lots : 138.
Honoraires d'agence de 4.41% à la charge de l'acquéreur
DPE
A
B
C
D
E
F
G
GES
A
B
C
D
E
F
G

Prêt immobilier

Vous souhaitez connaître votre capacité d’emprunt et trouver le meilleur crédit immobilier ?
Réaliser une simulation gratuite

Appartement à VICHY
Appartement à VICHY
Appartement à VICHY
Appartement à VICHY
Appartement à VICHY
Appartement à VICHY
Appartement à VICHY
Appartement à VICHY
Studio - Appartement à VICHY
Studio
Ce site est protégé par reCAPTCHA la Politique de confidentialité et les Conditions d’utilisation de Google s’appliquent.
Obtenir un prêt immobilier au meilleur taux ?

En poursuivant votre navigation sans modifier vos paramètres, vous acceptez l'utilisation de cookies susceptibles de réaliser des statistiques de visite. Cliquez ici pour plus d'informations