Bénéficiez des services de nos partenaires locaux soigneusement sélectionnés
pour vous accompagner dans votre parcours d'achat immobilier

Maison 185m² à montauban

— Montauban 82000 —
381 100 €
185 m² / 1 125 m²
7 pièces
parkingbalcon/terrassejardin

Nos partenaires locaux
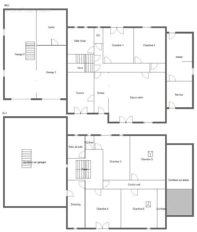
À Montauban nord à proximité des crèches, écoles, lycées et collèges (collège Azana à 2 minutes à pied), cette belle maison de 185 m² sur 2 niveaux n'attend que vous ! Elle offre un espace extérieur de 1125 m² comprenant une terrasse couverte et un jardin avec grand cabanon. De plus, deux places de parking extérieures et deux garages (47 m²) sont disponibles pour vos véhicules.
Dotée de 6 chambres réparties sur deux niveaux, cette maison spacieuse et lumineuse de 1974 propose un total de 7 pièces, avec un grand séjour, 2 toilettes et 2 salles de bain. Les combles de 40 m² offrent un espace supplémentaire pour le rangement. Elle dispose d'une climatisation réversible avec 3 splits, de la fibre optique, d'un atelier de bricolage et de beaucoup d'espace de rangement. L'intérieur avec ses nombreuses chambres, convient parfaitement aux grandes familles ou aux personnes recherchant un espace supplémentaire pour le travail à domicile. Possibilité d'en faire 2 logements également !

Les informations sur les risques auxquels ce bien est exposé sont disponibles sur le site Géorisques : www.georisques.gouv.fr
Prix de vente : 381 100 ¤
Honoraires charge vendeur

Contactez votre conseiller SAFTI : Rémi PESSET, Tél. : [Coordonnées masquées], E-mail : [Coordonnées masquées] - EI - Agent commercial immatriculé au RSAC de MONTAUBAN sous le numéro 942599630.
Informations LOI ALUR :
Honoraires charge vendeur. (gedeon_26118_31817544)
Voir plus

Référence: 1460873
Honoraires à la charge du vendeur.
Barème des honoraires
DPE
A
B
C
D
E
F
G
GES
A
B
C
D
E
F
G

Prêt immobilier

Vous souhaitez connaître votre capacité d’emprunt et trouver le meilleur crédit immobilier ?
Réaliser une simulation gratuite

Photo 1 - Maison à MONTAUBAN
Photo 1
Photo 2 - Maison à MONTAUBAN
Photo 2
Photo 3 - Maison à MONTAUBAN
Photo 3
Photo 4 - Maison à MONTAUBAN
Photo 4
Photo 5 - Maison à MONTAUBAN
Photo 5
Photo 6 - Maison à MONTAUBAN
Photo 6
Photo 7 - Maison à MONTAUBAN
Photo 7
Photo 8 - Maison à MONTAUBAN
Photo 8
Photo 9 - Maison à MONTAUBAN
Photo 9
Ce site est protégé par reCAPTCHA la Politique de confidentialité et les Conditions d’utilisation de Google s’appliquent.
Obtenir un prêt immobilier au meilleur taux ?

En poursuivant votre navigation sans modifier vos paramètres, vous acceptez l'utilisation de cookies susceptibles de réaliser des statistiques de visite. Cliquez ici pour plus d'informations