Maison 167m² à le puy-en-velay

— Le Puy-En-Velay 43000 —
208 500 €
167 m² / 621 m²
9 pièces
parkingjardin

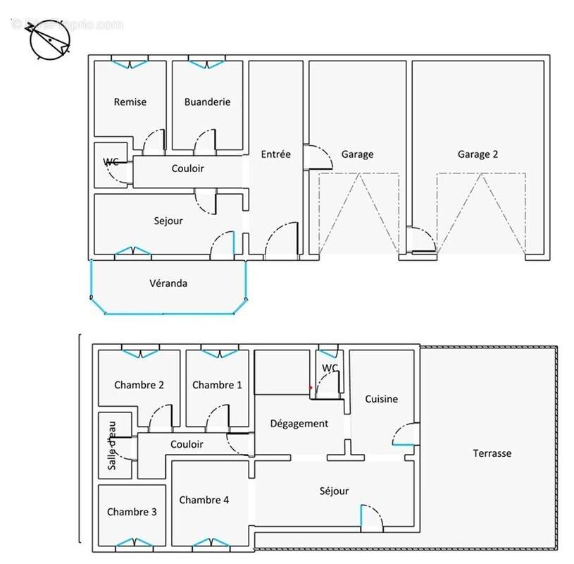
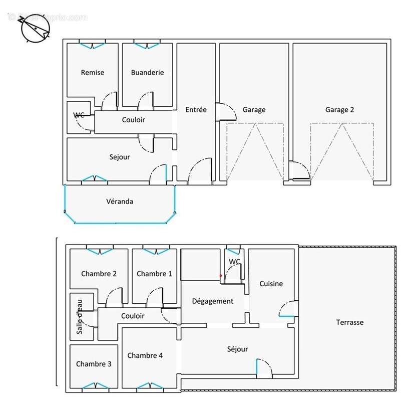
À VENDRE – Maison familiale de 167 m² – Taulhac

Située dans le secteur recherché de Taulhac, cette maison spacieuse de 167 m² habitables offre de beaux volumes et un fort potentiel.

Elle se compose au 1er niveau, de 3 chambres, une cuisine, un grand séjour/salle à manger avec accès à une belle terrasse et un balcon, 1 salle d'eau et 1 WC indépendant.
Au RDC vous trouverez un grand salon (ou salle de jeux ou chambre) avec son insert et un accès direct à une belle véranda, une buanderie, un bureau et une salle d'eau avec WC.
Avec son orientation Sud Ouest, la maison offre des espaces de vie lumineux.

La maison dispose également d’un double garage avec 2 portes motorisées.
Terrain clos de 620 m², garantissant intimité et sécurité. Portail motorisé.

Des travaux de sont à prévoir, laissant la possibilité aux futurs acquéreurs de personnaliser l’intérieur à leur goût.

Un bien rare sur le marché, idéal pour une famille à la recherche d’espace et de confort dans un environnement calme et à proximité du centre ville (Ligne 7 Tudip amenant au pole intermodale, arrêt à 2 min à pieds).

Caractéristiques techniques:
- Construction 1981, plans disponibles.
- Tout à l'égout
- Chauffage gaz, chaudière changée en 2015
- Isolation des combles récente
- Ouvertures double vitrage d'origine, volets roulants électriques.
- Structure en bon état (murs, charpente et couverture)

- Les principaux travaux à prévoir: changement des ouvertures, reprise des revêtements (sols et murs) et changement de la cuisine.

A voir rapidement. Ce bien vous est présenté par Julia Esbelin , votre conseiller indépendant Dr House Immo.
Voir plus

Référence: 105768DHI1324
Honoraires à la charge du vendeur.
Barème des honoraires
DPE
A
B
C
D
E
F
G
GES
A
B
C
D
E
F
G

Prêt immobilier

Vous souhaitez connaître votre capacité d’emprunt et trouver le meilleur crédit immobilier ?
Réaliser une simulation gratuite

Maison à LE PUY-EN-VELAY
Maison à LE PUY-EN-VELAY
Maison à LE PUY-EN-VELAY
Maison à LE PUY-EN-VELAY
Maison à LE PUY-EN-VELAY
Maison à LE PUY-EN-VELAY
Maison à LE PUY-EN-VELAY
Maison à LE PUY-EN-VELAY
Maison à LE PUY-EN-VELAY
Maison à LE PUY-EN-VELAY
Maison à LE PUY-EN-VELAY
Maison à LE PUY-EN-VELAY
Maison à LE PUY-EN-VELAY
Maison à LE PUY-EN-VELAY
Maison à LE PUY-EN-VELAY
Maison à LE PUY-EN-VELAY
Maison à LE PUY-EN-VELAY
Maison à LE PUY-EN-VELAY
Maison à LE PUY-EN-VELAY
Maison à LE PUY-EN-VELAY
Maison à LE PUY-EN-VELAY
Maison à LE PUY-EN-VELAY
Maison à LE PUY-EN-VELAY
Maison à LE PUY-EN-VELAY
Maison à LE PUY-EN-VELAY
Maison à LE PUY-EN-VELAY
Maison à LE PUY-EN-VELAY
Maison à LE PUY-EN-VELAY
Maison à LE PUY-EN-VELAY
Maison à LE PUY-EN-VELAY
Maison à LE PUY-EN-VELAY
Maison à LE PUY-EN-VELAY
Maison à LE PUY-EN-VELAY
Maison à LE PUY-EN-VELAY
Maison à LE PUY-EN-VELAY
Maison à LE PUY-EN-VELAY
Maison à LE PUY-EN-VELAY
Maison à LE PUY-EN-VELAY
Maison à LE PUY-EN-VELAY
Maison à LE PUY-EN-VELAY
Maison à LE PUY-EN-VELAY
Maison à LE PUY-EN-VELAY
Maison à LE PUY-EN-VELAY
Maison à LE PUY-EN-VELAY
Maison à LE PUY-EN-VELAY
Maison à LE PUY-EN-VELAY
Maison à LE PUY-EN-VELAY
Maison à LE PUY-EN-VELAY
Maison à LE PUY-EN-VELAY
Maison à LE PUY-EN-VELAY
Maison à LE PUY-EN-VELAY
Ce site est protégé par reCAPTCHA la Politique de confidentialité et les Conditions d’utilisation de Google s’appliquent.
Obtenir un prêt immobilier au meilleur taux ?

En poursuivant votre navigation sans modifier vos paramètres, vous acceptez l'utilisation de cookies susceptibles de réaliser des statistiques de visite. Cliquez ici pour plus d'informations