Bénéficiez des services de nos partenaires locaux soigneusement sélectionnés
pour vous accompagner dans votre parcours d'achat immobilier

Voir tous les partenaires locaux

Paris xvi - rue de passy

— Paris-16e 75016 —
550 000 €
47 m²
2 pièces

Nos partenaires locaux
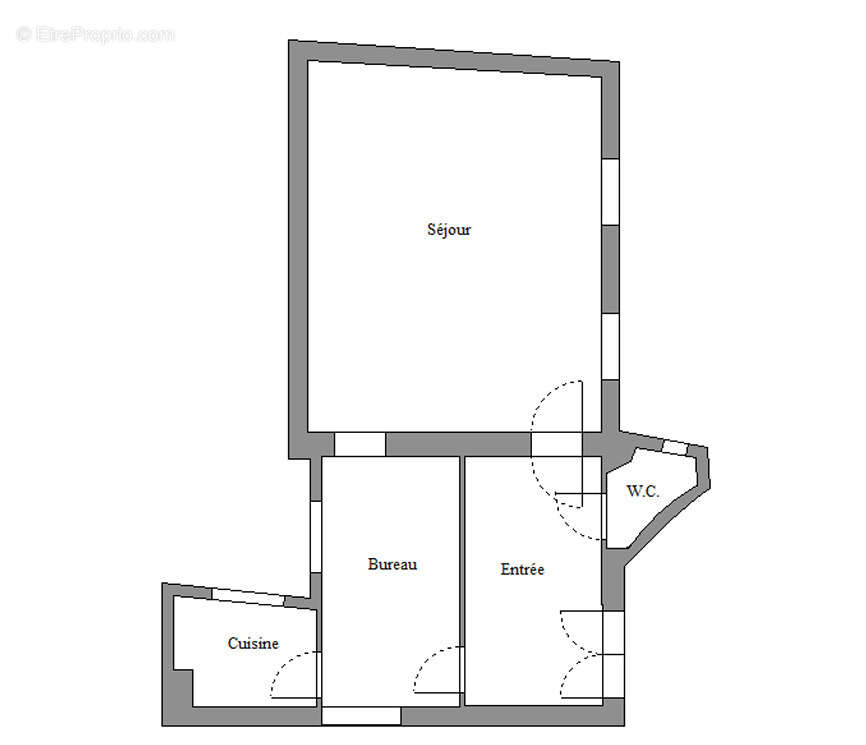
CALME ABSOLU - HABITATION OU PROFESSION LIBERALE - ASCENSEUR
Au cœur du village de Passy, à proximité immédiate des transports et des commerces, local situé au deuxième étage sur cour d’un élégant immeuble du milieu du XIXe siècle avec ascenseur.
Ce bien au calme absolu peut accueillir des professions libérales ou réglementées (jusqu'à présent cabinet médical). Il se compose d’une entrée avec bureau d’accueil, d’une salle d’attente, d’une salle de consultation, d’une petite cuisine et de toilettes indépendantes. Il peut aisément être reconfiguré en appartement classique.
Belle hauteur sous plafond (2,92m). Le ravalement de la façade a été voté (appels de fonds en cours).
Voir plus

Référence: 340
Bien en copropriété. Nombre de lots : 51. Charges de copropriété : 2048 €.
Honoraires à la charge du vendeur.
Barème des honoraires
DPE
A
B
C
D
E
F
G
GES
A
B
C
D
E
F
G

Prêt immobilier

Vous souhaitez connaître votre capacité d’emprunt et trouver le meilleur crédit immobilier ?
Réaliser une simulation gratuite

Appartement à PARIS-16E
Appartement à PARIS-16E
Appartement à PARIS-16E
Appartement à PARIS-16E
Appartement à PARIS-16E
Appartement à PARIS-16E
Appartement à PARIS-16E
Appartement à PARIS-16E
Appartement à PARIS-16E
Appartement à PARIS-16E
Appartement à PARIS-16E
Ce site est protégé par reCAPTCHA la Politique de confidentialité et les Conditions d’utilisation de Google s’appliquent.
Obtenir un prêt immobilier au meilleur taux ?

En poursuivant votre navigation sans modifier vos paramètres, vous acceptez l'utilisation de cookies susceptibles de réaliser des statistiques de visite. Cliquez ici pour plus d'informations