Bénéficiez des services de nos partenaires locaux soigneusement sélectionnés
pour vous accompagner dans votre parcours d'achat immobilier

Maison à rénover - fouesnant

— Fouesnant 29170 —
369 000 €
115 m² / 1 200 m²
5 pièces
parkingbalcon/terrassejardin

Nos partenaires locaux
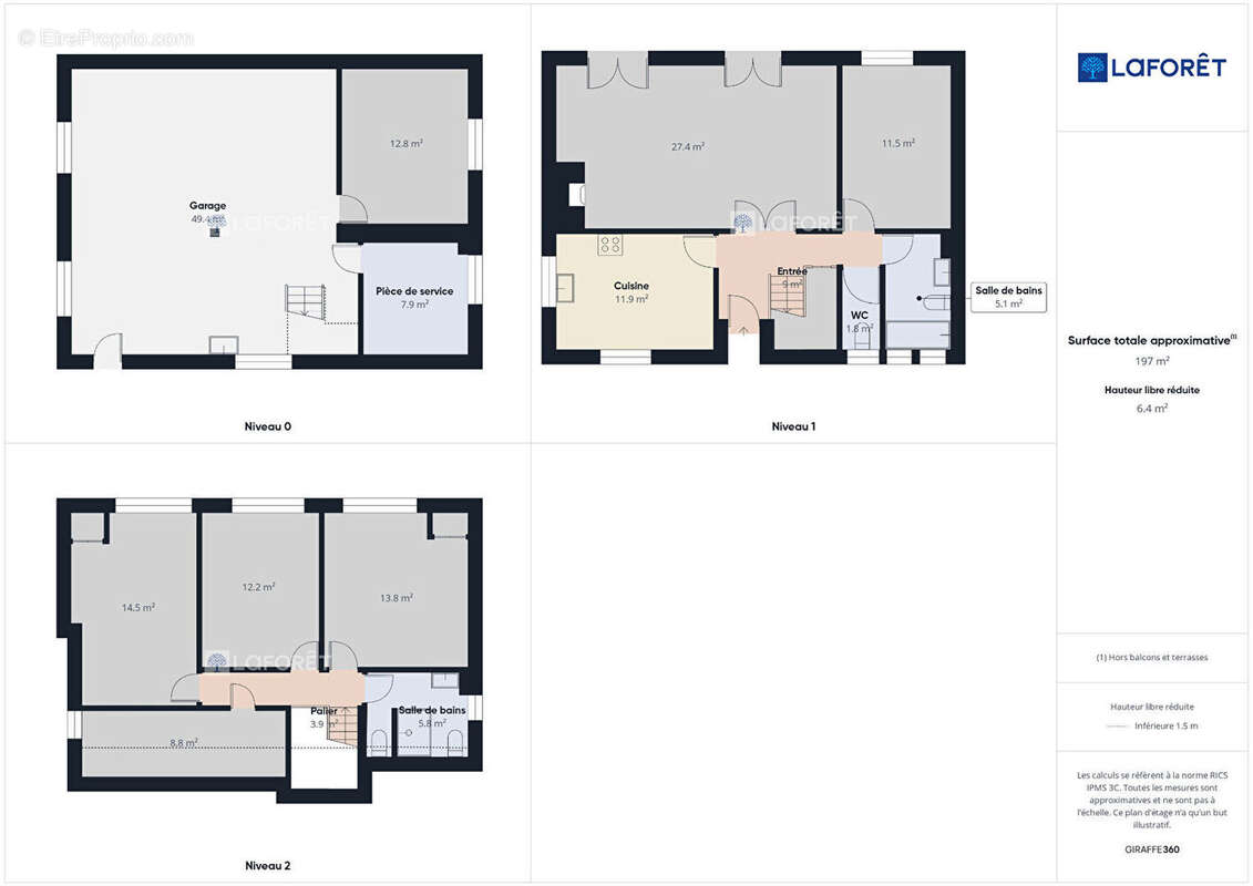
FOUESNANT : Située dans un bel environnement verdoyant, à proximité immédiate des commerces et des commodités, cette maison offre un beau potentiel pour les amateurs de rénovation. Implantée sur un terrain de 1 200 m², elle dispose d'un sous-sol total d'environ 70 m², idéal pour du rangement, un atelier ou un garage. La maison se compose au rez-de-chaussée d'une entrée, d'une cuisine indépendante, d'un séjour lumineux avec cheminée, d'une chambre, d'une salle de bains ainsi que d'un WC . A l'étage, un palier dessert 3 chambres, un espace dressing et une salle d'eau avec WC. Un bien rare sur le secteur, offrant de belles possibilités d'aménagement. A visiter sans tarder ! Référence mandat 13836 Aude Joncour Le Corre (EI) Agent Commercial - Numéro RSAC : 531478618 - Quimper.
Voir plus

Référence: 16602
Honoraires d'agence de 5.43% à la charge de l'acquéreur
Barème des honoraires
DPE
A
B
C
D
E
F
G
GES
A
B
C
D
E
F
G

Prêt immobilier

Vous souhaitez connaître votre capacité d’emprunt et trouver le meilleur crédit immobilier ?
Réaliser une simulation gratuite

Maison à FOUESNANT
Maison à FOUESNANT
Maison à FOUESNANT
Maison à FOUESNANT
Maison à FOUESNANT
Maison à FOUESNANT
Maison à FOUESNANT
Maison à FOUESNANT
Maison à FOUESNANT
Maison à FOUESNANT
Maison à FOUESNANT
Maison à FOUESNANT
Maison à FOUESNANT
Maison à FOUESNANT
Maison à FOUESNANT
Ce site est protégé par reCAPTCHA la Politique de confidentialité et les Conditions d’utilisation de Google s’appliquent.
Obtenir un prêt immobilier au meilleur taux ?

En poursuivant votre navigation sans modifier vos paramètres, vous acceptez l'utilisation de cookies susceptibles de réaliser des statistiques de visite. Cliquez ici pour plus d'informations