Bénéficiez des services de nos partenaires locaux soigneusement sélectionnés
pour vous accompagner dans votre parcours d'achat immobilier

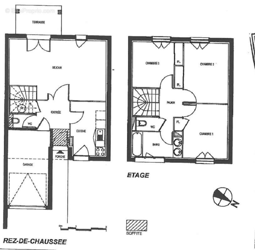
Maison saint gervais 4 pièce(s) 82.8 m2

— Saint-Gervais 33240 —
177 375 €
83 m²
4 pièces

Nos partenaires locaux
AVANTIM AQUITAINE vous propose dans une résidence sécurisée avec piscine, une villa T4 de 83 m² en RDC avec un étage, composée d'une entrée avec placard, d'un séjour et d'une cuisine fermée équipée. A l'étage : 3 chambres avec placards , une salle de bains et deux WC séparés. Vous profiterez également d'une terrasse de 6m² , d'un jardin de 130 m² et d'un garage attenant de 14m². Contact : [Coordonnées masquées] DPE : C - GES : A Taxe Foncière: 793 euros / an. Charges moyennes de copropriété : 1 870 euros/ an (dont 1665 euros récupérables auprès du locataire) PRIX : 177 350 euros FAI Les informations sur les risques auxquels ce bien est exposé sont disponibles sur le site Géorisques : www.georisques.gouv.fr
Voir plus

Honoraires à la charge du vendeur.
DPE
A
B
C
D
E
F
G
GES
A
B
C
D
E
F
G

Prêt immobilier

Vous souhaitez connaître votre capacité d’emprunt et trouver le meilleur crédit immobilier ?
Réaliser une simulation gratuite

Maison à SAINT-GERVAIS
Maison à SAINT-GERVAIS
Maison à SAINT-GERVAIS
Maison à SAINT-GERVAIS
Maison à SAINT-GERVAIS
Maison à SAINT-GERVAIS
Maison à SAINT-GERVAIS
Maison à SAINT-GERVAIS
Ce site est protégé par reCAPTCHA la Politique de confidentialité et les Conditions d’utilisation de Google s’appliquent.
Obtenir un prêt immobilier au meilleur taux ?

En poursuivant votre navigation sans modifier vos paramètres, vous acceptez l'utilisation de cookies susceptibles de réaliser des statistiques de visite. Cliquez ici pour plus d'informations