Maison avec hangar - dourges

— Dourges 62119 —
199 000 €
155 m²
6 pièces
parking

À vendre avec Rue'Brique Immo, un bien immobilier situé à Dourges, idéal pour les entrepreneurs, investisseurs ou les familles à la recherche d'espace et de potentiel.
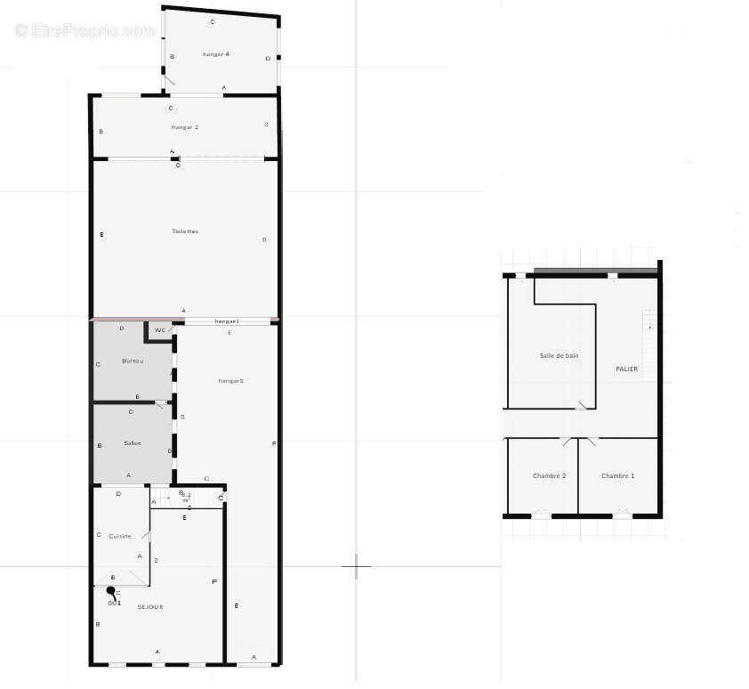
Ce bien se compose d'un ancien garage automobile et d'une maison d'habitation spacieuse de 150 m2, offrant quatre chambres confortables, parfaites pour accueillir une famille en pleine croissance.
Le grenier est aménageable, offrant la possibilité de créer un espace de vie supplémentaire ou un bureau selon vos besoins.
Le hangar attenant de 321 m2 est un véritable atout pour ce bien. Équipé de fosses mécaniques, il est parfaitement adapté pour un usage professionnel, que ce soit comme garage, atelier ou espace de stockage.
Cet espace peut également être reconfiguré pour répondre à des besoins divers, augmentant ainsi les possibilités d'exploitation comme la création d'un immeuble de rapport ou création de loft.
Situé au cœur de Dourges, ce bien bénéficie d'un emplacement stratégique à proximité de toutes les commodités, y compris les écoles, les commerces et les transports en commun, facilitant ainsi la vie de ses futurs occupants.
Bien que des travaux soient à prévoir, ce projet offre une opportunité unique de personnaliser le bien selon vos goûts et vos besoins, tout en ajoutant de la valeur à votre investissement.
Ne manquez pas cette chance de découvrir un lieu qui allie le charme de l'ancien à un potentiel moderne. Pour plus d'informations ou pour planifier une visite, contactez Rue Brique Immo
 
Voir plus

Référence: 232
Barème des honoraires

Prêt immobilier

Vous souhaitez connaître votre capacité d’emprunt et trouver le meilleur crédit immobilier ?
Réaliser une simulation gratuite

Maison à DOURGES
Maison à DOURGES
Maison à DOURGES
Maison à DOURGES
Maison à DOURGES
Maison à DOURGES
Maison à DOURGES
Maison à DOURGES
Maison à DOURGES
Maison à DOURGES
Maison à DOURGES
Maison à DOURGES
Ce site est protégé par reCAPTCHA la Politique de confidentialité et les Conditions d’utilisation de Google s’appliquent.
Obtenir un prêt immobilier au meilleur taux ?

En poursuivant votre navigation sans modifier vos paramètres, vous acceptez l'utilisation de cookies susceptibles de réaliser des statistiques de visite. Cliquez ici pour plus d'informations