Bénéficiez des services de nos partenaires locaux soigneusement sélectionnés
pour vous accompagner dans votre parcours d'achat immobilier

Appartement 80m² avec place de stationnement et cave

— Marseille-12e 13012 —
225 000 €
80 m²
3 pièces
parkingbalcon/terrasseascenseur

Nos partenaires locaux
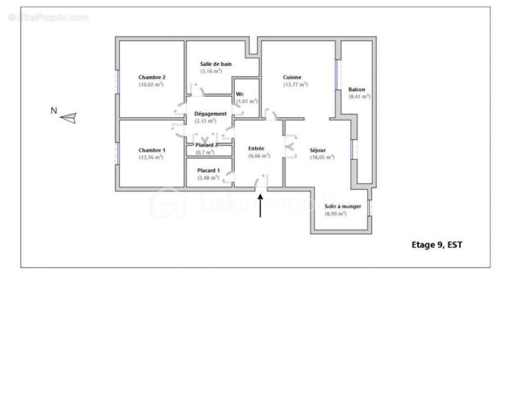
**À vendre : Appartement spacieux à La Fourragère (12ème arrondissement de Marseille)**

Venez découvrir cet appartement de 80 m² (loi Carrez) situé au 9ème étage avec ascenseur, dans une résidence sécurisée avec gardien, offrant une vue mer et sur la Bonne Mère de Marseille.
Idéalement situé, à proximité des transports en commun, des commerces et du quartier Saint Barnabé. Il se compose comme suit :
- Une entrée généreuse de plus de 6 m² avec placards de rangement
- Une cuisine ouverte sur un salon lumineux de 41 m², donnant accès à un balcon de 8 m²
- Deux chambres 10 m² et 13 m²
- Une salle de bain et des toilettes indépendantes

Pour votre confort, une cave et une place de stationnement privative viennent compléter le bien

Cette annonce référence 286146 vous est présentée par votre agent commercial BSK Immobilier PATRICIA PIRROTTA (EI) immatriculé au RSAC de TOULON (83000) sous le numéro 9[Coordonnées masquées]026.

Prix du bien : 225 000,00 €
Prix du bien hors honoraires : 216 000,00 €
Honoraires TTC : 4,17 %
Les honoraires d'agence sont à la charge de l'acquéreur.

A propos de la copropriété :
Pas de procédure en cours.
Nombre de lots : 3
Charges prévisionnelles annuelles : 3 400,00 €

A propos des performances énergétiques :
Date de réalisation du diagnostic énergétique : 20/03/2025
Score DPE : 160 kWhEP/m²/an
Score GES : 33 kgepCO2/m²/an
Montant estimé des dépenses annuelles d'énergie pour un usage standard : entre 1020.00 € et 1430.00 € par an. Prix moyens des énergies indexés sur l'année 2023 (abonnements compris).

Les informations sur les risques auxquels ce bien est exposé sont disponibles sur le site Géorisques : www.georisques.gouv.fr
Voir plus

Référence: 286146_1
Bien en copropriété. Nombre de lots : 3. Charges de copropriété : 283 €.
DPE
A
B
C
D
E
F
G
GES
A
B
C
D
E
F
G

Prêt immobilier

Vous souhaitez connaître votre capacité d’emprunt et trouver le meilleur crédit immobilier ?
Réaliser une simulation gratuite

Appartement à MARSEILLE-12E
Appartement à MARSEILLE-12E
Appartement à MARSEILLE-12E
Appartement à MARSEILLE-12E
Appartement à MARSEILLE-12E
Appartement à MARSEILLE-12E
Ce site est protégé par reCAPTCHA la Politique de confidentialité et les Conditions d’utilisation de Google s’appliquent.
Obtenir un prêt immobilier au meilleur taux ?

En poursuivant votre navigation sans modifier vos paramètres, vous acceptez l'utilisation de cookies susceptibles de réaliser des statistiques de visite. Cliquez ici pour plus d'informations