Maison 105m² à fresnes

— Fresnes 94260 —
470 000 €
105 m² / 260 m²
5 pièces
parkingbalcon/terrassejardin

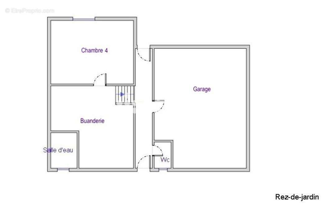
94260 - FRESNES - QUARTIER RESIDENTIEL - 4 CHAMBRES - MAISON ENTIEREMENT REFAITE AVEC TERRASSE ET JARDIN - CLIMATISATION ET POÊLE A BOIS - COPROPRIÉTÉ BIENVEILLANTE ET FAMILIALE.

EffiCity, l'agence qui estime votre bien en ligne, vous propose cette maison de 105m2 au sol, entièrement refaite, idéalement située dans un quartier résidentiel prisé de Fresnes.

Nichée dans un environnement calme et entourée de verdure, cette maison sur deux niveaux a été entièrement rénovée en 2018, offrant un cadre de vie idéal pour une famille en quête de tranquillité.

Les points forts de ce bien ne manqueront pas de vous séduire: une ISOLATION INTÉRIEURE de qualité, des OUVRANTS RÉCENTS, une CLIMATISATION pour des températures agréables en toute saison, un POÊLE À BOIS pour des soirées chaleureuses et conviviales et un SYSTÈME d'ASPIRATION MURAL qui facilitera le ménage au quotidien!

L'espace de vie lumineux et confortable de l'intérieur laisse place à une terrasse ensoleillée de 15m2, parfaite pour des moments de détente en plein air.

Cette maison bénéficie d'un très bon état général, tant au niveau de l'électricité que de la plomberie.

La proximité des transports en commun (Bus, RER, TVM), des commerces et des écoles facilite le quotidien et garantit une vie pratique pour toute la famille.

Ne manquez pas l'opportunité de visiter cette maison d'exception à Fresnes, contactez-nous dès maintenant pour organiser une visite!

Ecoles aux portes de la copropriété
Toutes commodités à 100 mètres
Piscine municipale à 10 minutes à pied

Bus 184 et 396 à 250m
Bus 286 à 400m
N62 et TVM à 10mn à pied
RER B et C à 16mn à pied
Grands axes à 650m.
Les informations sur les risques auxquels ce bien est exposé sont disponibles sur le site Georisque : georisques. gouv. fr
Isabelle Mary - EI - est Agent Commercial mandataire en immobilier, immatriculé au Registre Spécial des Agents Commerciaux du Tribunal de Commerce de Créteil sous le n°820381291.
Siège social du mandant : effiCity, 48 avenue de Villiers - 75017 PARIS - Société par Actions Simplifiée, société au capital de 132 373,05 euros, immatriculée au RCS Paris 497 617 746 et titulaire de la Carte professionnelle CPI 75[Coordonnées masquées]02 025 - CCI Paris IDF - Caisse de Garantie : GALIAN Assurances 89 rue de la Boétie 75008 Paris
Voir plus

Référence: 193103
Bien en copropriété. Nombre de lots : 30. Charges de copropriété : 116 €.
Honoraires à la charge du vendeur.
Barème des honoraires
DPE
A
B
C
D
E
F
G
GES
A
B
C
D
E
F
G

Prêt immobilier

Vous souhaitez connaître votre capacité d’emprunt et trouver le meilleur crédit immobilier ?
Réaliser une simulation gratuite

Maison à FRESNES
Maison à FRESNES
Maison à FRESNES
Maison à FRESNES
Maison à FRESNES
Maison à FRESNES
Maison à FRESNES
Maison à FRESNES
Maison à FRESNES
Maison à FRESNES
Maison à FRESNES
Maison à FRESNES
Maison à FRESNES
Maison à FRESNES
Maison à FRESNES
Maison à FRESNES
Maison à FRESNES
Maison à FRESNES
Ce site est protégé par reCAPTCHA la Politique de confidentialité et les Conditions d’utilisation de Google s’appliquent.
Obtenir un prêt immobilier au meilleur taux ?

En poursuivant votre navigation sans modifier vos paramètres, vous acceptez l'utilisation de cookies susceptibles de réaliser des statistiques de visite. Cliquez ici pour plus d'informations