Maison 330m² à melrand

— Melrand 56310 —
86 000 €
330 m² / 729 m²
5 pièces
jardin

Iad France - Ronan Le Pen vous propose : Grande maison mitoyenne à fort potentiel - 330 m² habitables, centre bourg

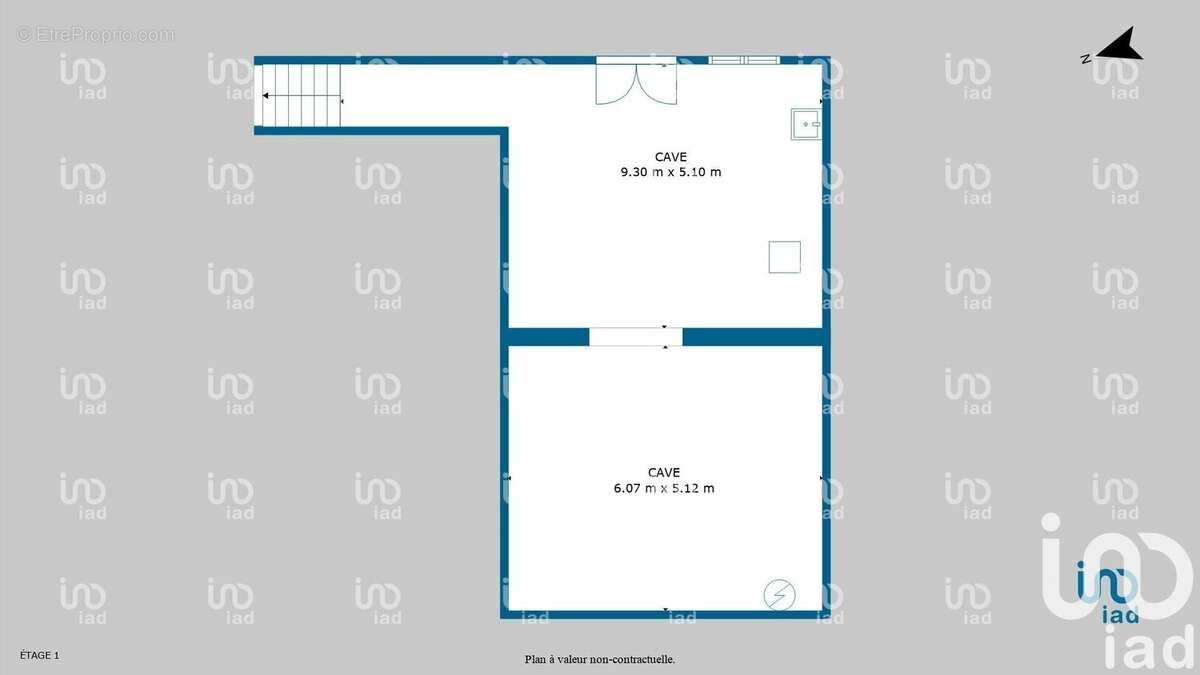
Idéalement située à quelques pas des commerces, cette vaste maison mitoyenne de 330 m² habitables répartis sur trois niveaux offre un beau potentiel pour un projet de rénovation.

Elle dispose en plus d'une cave en sous-sol et de deux garages, parfaits pour le stationnement ou le stockage.

Les éléments structurels essentiels sont en excellent état : toiture, charpente et murs ne nécessitent aucun travaux. Le bien est relié au tout-à-l'égout.

L'intérieur est à rénover intégralement, incluant la suppression d'un plancher au profit d'une dalle béton, pour une redistribution plus moderne et fonctionnelle des espaces.

Avec ses volumes généreux, cette maison pourrait facilement être aménagée en trois logements de type T3, ou en une grande maison familiale.

Un bien rare à fort potentiel, à visiter sans tarder.

Honoraires d'agence à la charge de l'acquéreur. Prix honoraires inclus : 86000 euros. Prix hors honoraires : 80000 euros. Honoraires TTC à la charge de l'acquéreur (7,50% du prix du bien hors honoraires) : 6000 euros.
Information d'affichage énergétique sur ce bien : classe ENERGIE F indice 267 et classe CLIMAT F indice 75. Les informations sur les risques auxquels ce bien est exposé, y compris l'obligation légale de débroussaillement, sont disponibles sur le site Géorisques : http://www.georisques.gouv.fr.
La présente annonce immobilière a été rédigée sous la responsabilité éditoriale de M Ronan Le Pen mandataire indépendant en immobilier (sans détention de fonds), agent commercial de la SAS I@D France immatriculé au RSAC de LORIENT sous le numéro 947813614, titulaire de la carte de démarchage immobilier pour le compte de la société I@D France SAS.
Informations LOI ALUR :
Honoraires charge vendeur. (gedeon_6727_31472725)
Voir plus

Référence: 1793888
Honoraires à la charge du vendeur.
DPE
A
B
C
D
E
F
G
GES
A
B
C
D
E
F
G

Prêt immobilier

Vous souhaitez connaître votre capacité d’emprunt et trouver le meilleur crédit immobilier ?
Réaliser une simulation gratuite

Photo 1 - Maison à MELRAND
Photo 1
Photo 2 - Maison à MELRAND
Photo 2
Photo 3 - Maison à MELRAND
Photo 3
Photo 4 - Maison à MELRAND
Photo 4
Photo 5 - Maison à MELRAND
Photo 5
Photo 6 - Maison à MELRAND
Photo 6
Photo 7 - Maison à MELRAND
Photo 7
Photo 8 - Maison à MELRAND
Photo 8
Photo 9 - Maison à MELRAND
Photo 9
Ce site est protégé par reCAPTCHA la Politique de confidentialité et les Conditions d’utilisation de Google s’appliquent.
Obtenir un prêt immobilier au meilleur taux ?

En poursuivant votre navigation sans modifier vos paramètres, vous acceptez l'utilisation de cookies susceptibles de réaliser des statistiques de visite. Cliquez ici pour plus d'informations