Bénéficiez des services de nos partenaires locaux soigneusement sélectionnés
pour vous accompagner dans votre parcours d'achat immobilier

Appartement 196m² à le mans

— Le Mans 72000 —
200 000 €
196 m²

Nos partenaires locaux
Iad France - Xavier Nardeux vous propose : À vendre - Immeuble ancien avec local commercial - Quartier Chasse Royale au Mans

Avec sa vitrine donnant directement sur une place commerçante avec parkings, découvrez cet immeuble de caractère :
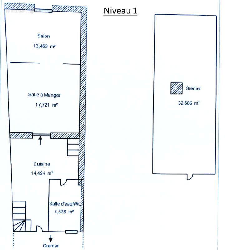
Au rez-de-chaussée : local professionnel de 120 m² environ (espace clientèle et réserve), 2 WC, patio intérieur, garage fermé d'environ 32 m² donnant sur cours privative.
Au premier et second étage : appartement de 76 m² environ comprenant : cuisine, salon, salle à manger, salle d'eau avec WC, deux chambres.
Cave de 32 m² environ. Entrée sur rue et à l'arrière du bâtiment. Un grenier d'environ 32 m² supplémentaires est à aménager au premier étage. Travaux à prévoir. Fort potentiel pour un projet de commerce et d'habitation.

Belle opportunité à saisir dans un secteur recherché !

Honoraires d'agence à la charge du vendeur.
Information d'affichage énergétique sur ce bien : classe ENERGIE E indice 336 et classe CLIMAT D indice 33. Les informations sur les risques auxquels ce bien est exposé, y compris l'obligation légale de débroussaillement, sont disponibles sur le site Géorisques : http://www.georisques.gouv.fr.
La présente annonce immobilière a été rédigée sous la responsabilité éditoriale de M Xavier Nardeux mandataire indépendant en immobilier (sans détention de fonds), agent commercial de la SAS I@D France immatriculé au RSAC de Le Mans sous le numéro 892166026, titulaire de la carte de démarchage immobilier pour le compte de la société I@D France SAS.
Informations LOI ALUR :
Honoraires charge vendeur. (gedeon_6727_31848918)
Voir plus

Référence: 1840333
Honoraires à la charge du vendeur.
DPE
A
B
C
D
E
F
G
GES
A
B
C
D
E
F
G

Prêt immobilier

Vous souhaitez connaître votre capacité d’emprunt et trouver le meilleur crédit immobilier ?
Réaliser une simulation gratuite

Photo 1 - Appartement à LE MANS
Photo 1
Photo 2 - Appartement à LE MANS
Photo 2
Photo 3 - Appartement à LE MANS
Photo 3
Photo 4 - Appartement à LE MANS
Photo 4
Photo 5 - Appartement à LE MANS
Photo 5
Photo 6 - Appartement à LE MANS
Photo 6
Photo 7 - Appartement à LE MANS
Photo 7
Photo 8 - Appartement à LE MANS
Photo 8
Ce site est protégé par reCAPTCHA la Politique de confidentialité et les Conditions d’utilisation de Google s’appliquent.
Obtenir un prêt immobilier au meilleur taux ?

En poursuivant votre navigation sans modifier vos paramètres, vous acceptez l'utilisation de cookies susceptibles de réaliser des statistiques de visite. Cliquez ici pour plus d'informations