Bénéficiez des services de nos partenaires locaux soigneusement sélectionnés
pour vous accompagner dans votre parcours d'achat immobilier

Maison 156m² à widensolen

— Widensolen 68320 —
457 000 €
156 m² / 1 619 m²
8 pièces
parkingjardin

Nos partenaires locaux
Située à Widensolen (68320), cette propriété bénéficie d'un environnement paisible offrant un cadre de vie idéal. Proche des commodités locales, cette charmante maison est également à proximité de divers points d'intérêts, assurant confort et praticité à ses habitants.

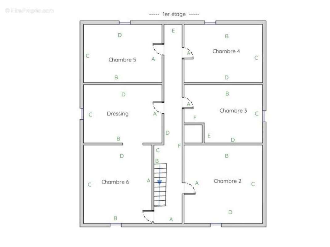
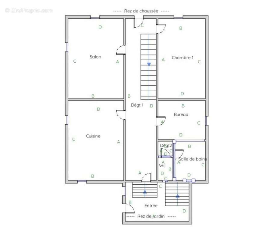
Avec une surface habitable de 156 m² habitables (loi Carrez) pour la maison d'habitation, répartis sur 8 pièces, elle offre des espaces extérieurs généreux ainsi que plusieurs grande dépendances de plus de 400 m², idéales pour divers projets.

Ce sont des granges pour dépôt stockage etc.

+ un local commercial annexe, équipé pour un traiteur et où boucherie d'une surface de 71 m² environ,

Sur un terrain de 1619 m² Environ, cette maison comprend 5,6 places de parking.
L'intérieur de ce bien propose 4 chambres, 1 toilette et 1 salle de bain, offrant un agencement fonctionnel et spacieux, avec une cave de environs 40 m².

Dotée d'une superficie de 171 m² au sol, cette maison allie confort et modernité, offrant un cadre de vie agréable et chaleureux à ses résidents.

Un domaine idéal pour un artisan.
Possibilité d'avoir 18 ares de verger supplémentaire pour 26 000¤.

Les informations sur les risques auxquels ce bien est exposé sont disponibles sur le site Géorisques : www.georisques.gouv.fr
Prix de vente : 457 000 ¤
Honoraires charge vendeur

Contactez votre conseiller SAFTI : Michel BLANCK, Tél. : [Coordonnées masquées], E-mail : [Coordonnées masquées] - EI - Agent commercial immatriculé au RSAC de COLMAR sous le numéro 379 949 944.
Informations LOI ALUR :
Honoraires charge vendeur. (gedeon_26118_31835036)
Voir plus

Référence: 1527439
Honoraires à la charge du vendeur.
Barème des honoraires
DPE
A
B
C
D
E
F
G
GES
A
B
C
D
E
F
G

Prêt immobilier

Vous souhaitez connaître votre capacité d’emprunt et trouver le meilleur crédit immobilier ?
Réaliser une simulation gratuite

Photo 1 - Maison à WIDENSOLEN
Photo 1
Photo 2 - Maison à WIDENSOLEN
Photo 2
Photo 3 - Maison à WIDENSOLEN
Photo 3
Photo 4 - Maison à WIDENSOLEN
Photo 4
Photo 5 - Maison à WIDENSOLEN
Photo 5
Ce site est protégé par reCAPTCHA la Politique de confidentialité et les Conditions d’utilisation de Google s’appliquent.
Obtenir un prêt immobilier au meilleur taux ?

En poursuivant votre navigation sans modifier vos paramètres, vous acceptez l'utilisation de cookies susceptibles de réaliser des statistiques de visite. Cliquez ici pour plus d'informations