Bénéficiez des services de nos partenaires locaux soigneusement sélectionnés
pour vous accompagner dans votre parcours d'achat immobilier

Vente appartement 5 pièces de 109m² - 92400 courbevoie

— Courbevoie 92400 —
670 000 €
108 m²
5 pièces
parkingascenseur

Nos partenaires locaux
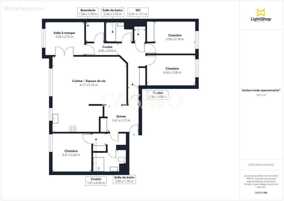
Casavo vous propose à la vente cet appartement de 5 pièces de 108.55 m² localisé dans le quartier Abreuvoir/ Victor Hugo.

Ce bien, récemment rénové, se situe dans un immeuble de 1989, au 1er étage avec ascenseur.
Il est sécurisé par un digicode, un visiophone et une gardienne.

Il se compose d'1 entrée avec rangements, d'1 grand séjour avec cuisine ouverte équipée, d'1 salle à manger (4e chambre possible), de 3 chambres dont une suite parentale, d'1 salle de bain, d'1 salle d'eau avec WC, d'1 WC séparé et d'1 buanderie.

Orienté Sud-Est et traversant, il dispose de doubles vitrages sur l'ensemble des fenêtres.
Deux caves et un double box complètent ce bien.

À proximité des transports (ligne 1, ligne L et future ligne 15), des écoles, crèches et commerces.
À quelques minutes à pieds du très agréable Parc des Berges de Seine.

Charges de copropriété 300€ par mois.
Taxe foncière 1 176€.

Prise de rdv 24/24 sur notre site internet.
Ce bien est commercialisé par Casavo.

Intéressé par ce bien ? Plus d'informations sur le site de Casavo.
Voir plus

Référence: 45715
Honoraires à la charge du vendeur.
DPE
A
B
C
D
E
F
G
GES
A
B
C
D
E
F
G

Prêt immobilier

Vous souhaitez connaître votre capacité d’emprunt et trouver le meilleur crédit immobilier ?
Réaliser une simulation gratuite

Appartement à COURBEVOIE
Appartement à COURBEVOIE
Appartement à COURBEVOIE
Appartement à COURBEVOIE
Appartement à COURBEVOIE
Appartement à COURBEVOIE
Appartement à COURBEVOIE
Appartement à COURBEVOIE
Appartement à COURBEVOIE
Appartement à COURBEVOIE
Appartement à COURBEVOIE
Ce site est protégé par reCAPTCHA la Politique de confidentialité et les Conditions d’utilisation de Google s’appliquent.
Obtenir un prêt immobilier au meilleur taux ?

En poursuivant votre navigation sans modifier vos paramètres, vous acceptez l'utilisation de cookies susceptibles de réaliser des statistiques de visite. Cliquez ici pour plus d'informations