Bénéficiez des services de nos partenaires locaux soigneusement sélectionnés
pour vous accompagner dans votre parcours d'achat immobilier

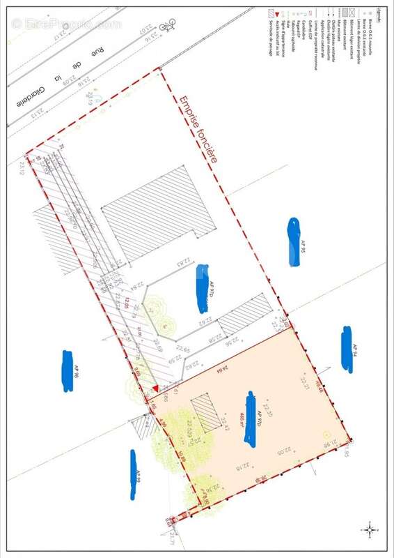
Terrain 465m² à saint-gereon

— Saint-Gereon 44150 —
95 990 €
465 m²

Nos partenaires locaux
ANCENIS-SAINT GEREON / SEULEMENT CHEZ IMOBOX

Dans le quartier recherché du bois jauni, belle parcelle de terrain de bâtir de 465 m². Le terrain est non viabilisé et situé en zone Ub du plan local d'urbanisme de la commune.
Sa façade de 18 m lui confère une constructibilité optimum pour la création d'un plain pied ou d'une maison à étage.
Le terrain est situé au calme et à proximité immédiate des commodités (écoles, centre commercial du bois jauni).
La gare est située à 5 minutes en voiture et à 15 minutes à pied.
Produit rare sur le marché Honoraires de transaction à la charge de l'acquéreur : https://www.imobox.fr/static/img/other/plaque-honoraires.jpg
Retrouver toutes nos annonces et plus de photos sur www.imobox.fr
Les informations sur les risques auxquels ce bien est exposé sont disponibles sur le site Géorisques : www.georisques.gouv.fr Contactez Christelle LEGER(s) au [Coordonnées masquées]. N° RSAC : 883112690
Voir plus

Référence: 15360
Honoraires d'agence de 6.66% à la charge de l'acquéreur
Barème des honoraires

Prêt immobilier

Vous souhaitez connaître votre capacité d’emprunt et trouver le meilleur crédit immobilier ?
Réaliser une simulation gratuite

IMG_5598 - Terrain à SAINT-GEREON
IMG_5598
IMG_5596 - Terrain à SAINT-GEREON
IMG_5596
IMG_5597 - Terrain à SAINT-GEREON
IMG_5597
Plan de géomètre - Terrain à SAINT-GEREON
Plan de géomètre
Ce site est protégé par reCAPTCHA la Politique de confidentialité et les Conditions d’utilisation de Google s’appliquent.
Obtenir un prêt immobilier au meilleur taux ?

En poursuivant votre navigation sans modifier vos paramètres, vous acceptez l'utilisation de cookies susceptibles de réaliser des statistiques de visite. Cliquez ici pour plus d'informations