Bénéficiez des services de nos partenaires locaux soigneusement sélectionnés
pour vous accompagner dans votre parcours d'achat immobilier

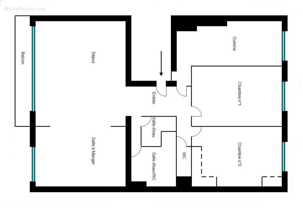
Appartement 4 pièces 88m2 avec balcon

— Neuilly-Sur-Seine 92200 —
1 145 000 €
88 m²
4 pièces
balcon/terrasse

Nos partenaires locaux
Chézy-Bineau proche des commerces de la rue de Chézy, dans un immeuble semi-récent de bon standing, sécurisé, au 2ème étage avec ascenseur nous vous proposons à la vente un appartement traversant de 88m2 comprenant : une entrée, un séjour avec vue dégagée ouvrant sur un balcon, une salle à manger (ou 3ème chambre), une cuisine séparée aménagée et équipée, deux chambres avec placards au calme sur jardin, deux salles de douche dont une avec wc et buanderie, un deuxième wc séparé.. Au sous-sol une cave complète ce bien. Parquet total, double vitrage, volets roulants électriques. Copropriété de 22 lots principaux. Charges courantes annuelles avec chauffage eau chaude , eau froide, ascenseur : 4800 € pour cet appartement qui représente 46/1000èmes des parties communes générales. Les informations sur les risques auxquels ce bien est exposé sont disponibles sur le site Géorisques : www. georisques. gouv. fr
Voir plus

Bien en copropriété. Nombre de lots : 22. Charges de copropriété : 4800 €.
Barème des honoraires
DPE
A
B
C
D
E
F
G
GES
A
B
C
D
E
F
G

Prêt immobilier

Vous souhaitez connaître votre capacité d’emprunt et trouver le meilleur crédit immobilier ?
Réaliser une simulation gratuite

Appartement à NEUILLY-SUR-SEINE
Appartement à NEUILLY-SUR-SEINE
Appartement à NEUILLY-SUR-SEINE
Appartement à NEUILLY-SUR-SEINE
Appartement à NEUILLY-SUR-SEINE
Appartement à NEUILLY-SUR-SEINE
Appartement à NEUILLY-SUR-SEINE
Appartement à NEUILLY-SUR-SEINE
Appartement à NEUILLY-SUR-SEINE
Appartement à NEUILLY-SUR-SEINE
Appartement à NEUILLY-SUR-SEINE
Appartement à NEUILLY-SUR-SEINE
Appartement à NEUILLY-SUR-SEINE
Appartement à NEUILLY-SUR-SEINE
Appartement à NEUILLY-SUR-SEINE
Appartement à NEUILLY-SUR-SEINE
Ce site est protégé par reCAPTCHA la Politique de confidentialité et les Conditions d’utilisation de Google s’appliquent.
Obtenir un prêt immobilier au meilleur taux ?

En poursuivant votre navigation sans modifier vos paramètres, vous acceptez l'utilisation de cookies susceptibles de réaliser des statistiques de visite. Cliquez ici pour plus d'informations