Bénéficiez des services de nos partenaires locaux soigneusement sélectionnés
pour vous accompagner dans votre parcours d'achat immobilier

Fort potentiel ! appartement 3 pièces avec terrasse - porte de saint-ouen- rue du général henrys, paris 17e

— Paris-17e 75017 —
545 000 €
70 m²
3 pièces
parkingbalcon/terrasseascenseur

Nos partenaires locaux
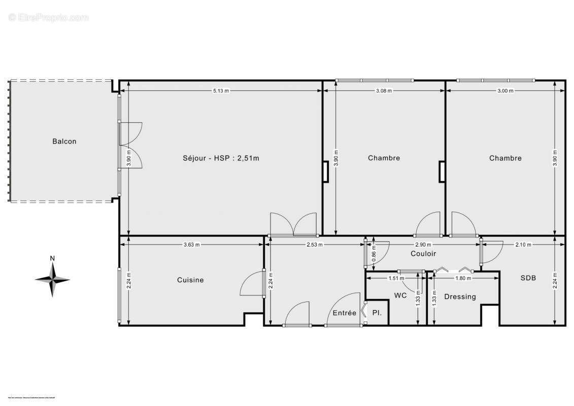
Hosman vous propose cet appartement 3 pièces de 67,26 m² carrez (69,5 m² pondérés) situé Rue du Général Henrys à Paris 17e. Situé au 2ème étage d'un immeuble avec ascenseur semi-récent de 7 étages, disposant d'un local vélo. Des travaux de rénovation des parties communes et des façades ont déjà été votés et payés.

Cet appartement, qui est à rénover, se compose comme suit :
- Une entrée de 5,72 m², menant à un séjour lumineux de 19,8 m² orienté sud-ouest sur rue avec accès à la terrasse de 8,50 m² ;
- Une cuisine séparée mais ouvrable sur le séjour de 8,10 m² ;
- Deux chambres spacieuses de 11,7 m² chacune, exposée nord-ouest ;
- Une salle de bain avec baignoire, vasque et bidet ;
- Un WC séparé avec lave-mains.

Une cave complète ce bien.
Un boxe fermé de 15 m² est proposé en sus du prix.

Le chauffage et l'eau chaude sont fournis par un système collectif au gaz.
La taxe foncière est de 1900€.
Les charges mensuelles sont de 336€.

L'appartement est situé dans une rue calme à proximité de nombreux commerces, et à 5 minutes à pied de la station de métro Porte de Saint-Ouen (ligne 13, ligne de tramway T3B).

Le bien est soumis au statut de copropriété.

Planifiez facilement votre visite en choisissant le créneau qui vous convient depuis le site d'Hosman.

Hosman s'efforce de réinventer l'agence immobilière en offrant un service innovant et transparent aux acheteurs et aux vendeurs. Nos frais d'agence sont de 14 900 euros fixes à la charge du vendeur.
Si vous êtes un professionnel de l'immobilier (agent, mandataire ou chasseur immobilier), sachez que toutes les annonces Hosman sont ouvertes à la collaboration. N'hésitez pas à nous contacter pour en discuter.
Voir plus

Référence: 6ae34f
Bien en copropriété. Charges de copropriété : 336 €.
Honoraires à la charge du vendeur.
DPE
A
B
C
D
E
F
G
GES
A
B
C
D
E
F
G

Prêt immobilier

Vous souhaitez connaître votre capacité d’emprunt et trouver le meilleur crédit immobilier ?
Réaliser une simulation gratuite

Appartement à PARIS-17E
Appartement à PARIS-17E
Appartement à PARIS-17E
Appartement à PARIS-17E
Appartement à PARIS-17E
Appartement à PARIS-17E
Appartement à PARIS-17E
Appartement à PARIS-17E
Appartement à PARIS-17E
Appartement à PARIS-17E
Appartement à PARIS-17E
Ce site est protégé par reCAPTCHA la Politique de confidentialité et les Conditions d’utilisation de Google s’appliquent.
Obtenir un prêt immobilier au meilleur taux ?

En poursuivant votre navigation sans modifier vos paramètres, vous acceptez l'utilisation de cookies susceptibles de réaliser des statistiques de visite. Cliquez ici pour plus d'informations