Coup de coeur ravissante maison de ville - 80 m2 et 88 m2 au sol - avec terrasse de 52 m2 - à deux pas du parc du château - rue

— Suresnes 92150 —
630 000 €
88 m²
5 pièces
balcon/terrasse

Hosman vous propose à la vente cette maison accompagnée de sa terrasse, représentant au total une surface habitable de 79.57 m2 (loi Carrez) et 87.21 m2 au sol, située dans le quartier très recherché du Parc du Château à Suresnes.

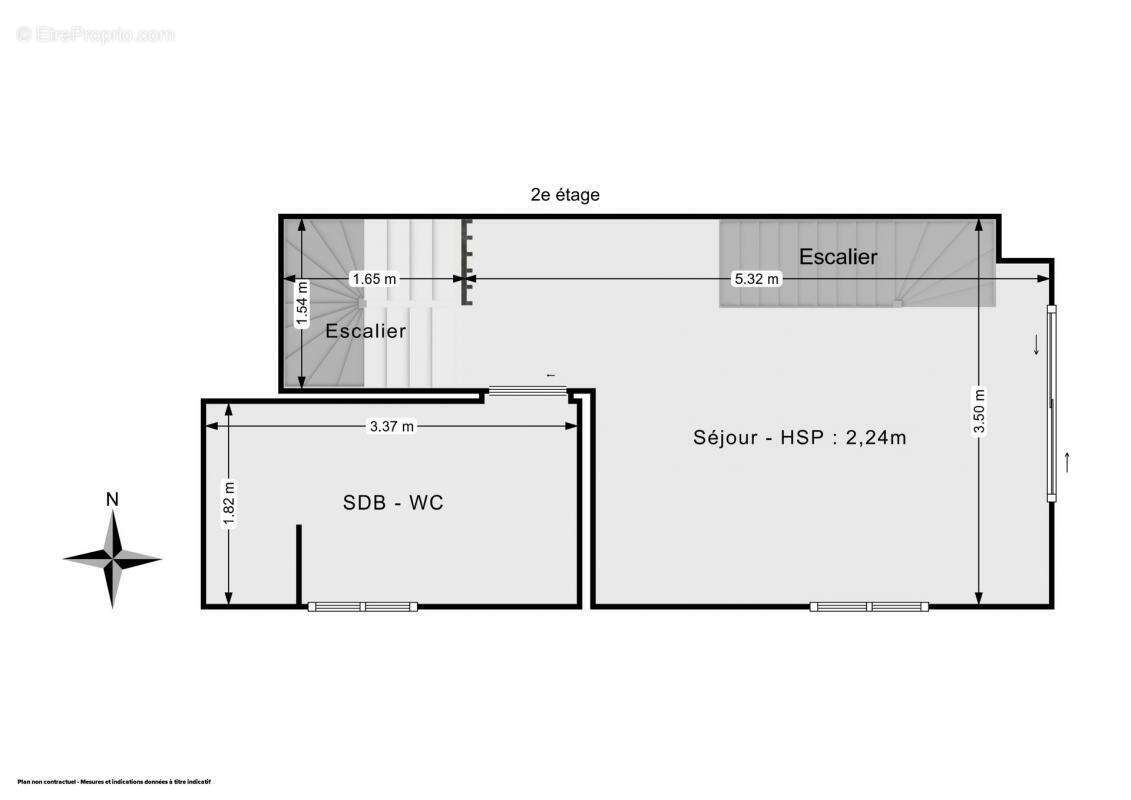
La maison, dotée de nombreux rangements, est construite sur 4 niveaux comme suit :

Au RDC :

Une cuisine ouverte, moderne, bien agencée et équipée
Un espace salle à manger avec cheminée à insert fonctionnelle
Entrée par une cour, au calme

Au 1er étage :

Un séjour exposé Sud-Ouest lumineux
Le séjour donnant directement sur une magnifique terrasse de 52 m2 sans vis-à-vis
Une salle de bain comprenant une baignoire et WC suspendu

Au 2ème étage :

2 chambres au calme très lumineuses avec climatisation réversible

Au sous-sol :

Un espace pouvant servir de chambre / grand bureau pour le télétravail / studio de musique
Une salle d'eau avec douche et WC
De nombreux rangements Une place de parking est disponible en sus à 50m de la maison.

Bien idéalement situé dans un quartier commerçant et résidentiel, très bien desservi par les transports (à 5 minutes du T2).
À proximité directe des écoles maternelles et primaires, publiques et privées. Le parc du château est accessible à 3 minutes à pied.

Les charges de copropriété sont de 450 € par trimestre.
La taxe foncière est de 926 € par an.

Profitez de la visite virtuelle en 3D pour vous projeter dans ce bien !
Si vous souhaitez le visiter, choisissez le créneau qui vous convient le mieux et planifiez votre visite en toute autonomie, depuis notre site hosman . co
Hosman s'efforce de réinventer l'agence immobilière en offrant un service innovant et transparent aux acheteurs et aux vendeurs.
Nos frais d'agence sont de 9900 euros fixes à la charge du vendeur. Si vous êtes un professionnel de l'immobilier (agent, mandataire ou chasseur immobilier) sachez que toutes les annonces Hosman sont ouvertes à la collaboration. N'hésitez pas à nous contacter pour en discuter.
Voir plus

Référence: 8d5d0f
Honoraires à la charge du vendeur.
DPE
A
B
C
D
E
F
G
GES
A
B
C
D
E
F
G

Prêt immobilier

Vous souhaitez connaître votre capacité d’emprunt et trouver le meilleur crédit immobilier ?
Réaliser une simulation gratuite

Maison à SURESNES
Maison à SURESNES
Maison à SURESNES
Maison à SURESNES
Maison à SURESNES
Maison à SURESNES
Maison à SURESNES
Maison à SURESNES
Maison à SURESNES
Maison à SURESNES
Maison à SURESNES
Maison à SURESNES
Maison à SURESNES
Maison à SURESNES
Maison à SURESNES
Maison à SURESNES
Maison à SURESNES
Ce site est protégé par reCAPTCHA la Politique de confidentialité et les Conditions d’utilisation de Google s’appliquent.
Obtenir un prêt immobilier au meilleur taux ?

En poursuivant votre navigation sans modifier vos paramètres, vous acceptez l'utilisation de cookies susceptibles de réaliser des statistiques de visite. Cliquez ici pour plus d'informations