Vélines - maison de caractère 6 pièces avec pigeonnier historique

— Velines 24230 —
266 000 €
180 m² / 424 m²
6 pièces
jardin

VÉLINES - Maison de caractère 6 pièces avec pigeonnier historique
185 m² habitables - Terrain de 424 m² -Entièrement restaurée.

LE CHARME de l'authentique, le CONFORT du moderne

Cette maison de bourg en pierres et moellons entièrement restaurée vous séduira par son caractère exceptionnel et ses finitions soignées. Située idéalement entre Castillon-la-Bataille (20 min) et Sainte-Foy-la-Grande (14 min), elle offre un parfait équilibre entre tranquillité campagnarde et accessibilité vers Bordeaux et Bergerac.

LES ATOUTS qui font la différence

Pigeonnier historique : Il donne une âme unique à cette propriété
Pierres apparentes et poutres de charpente : un cachet architectural préservé
Restauration complète : emménagez sans travaux
Terrain compact et fonctionnel : 424 m² parfaits pour une famille, faciles d'entretien

AMENAGEMENTS pensés pour le confort familial

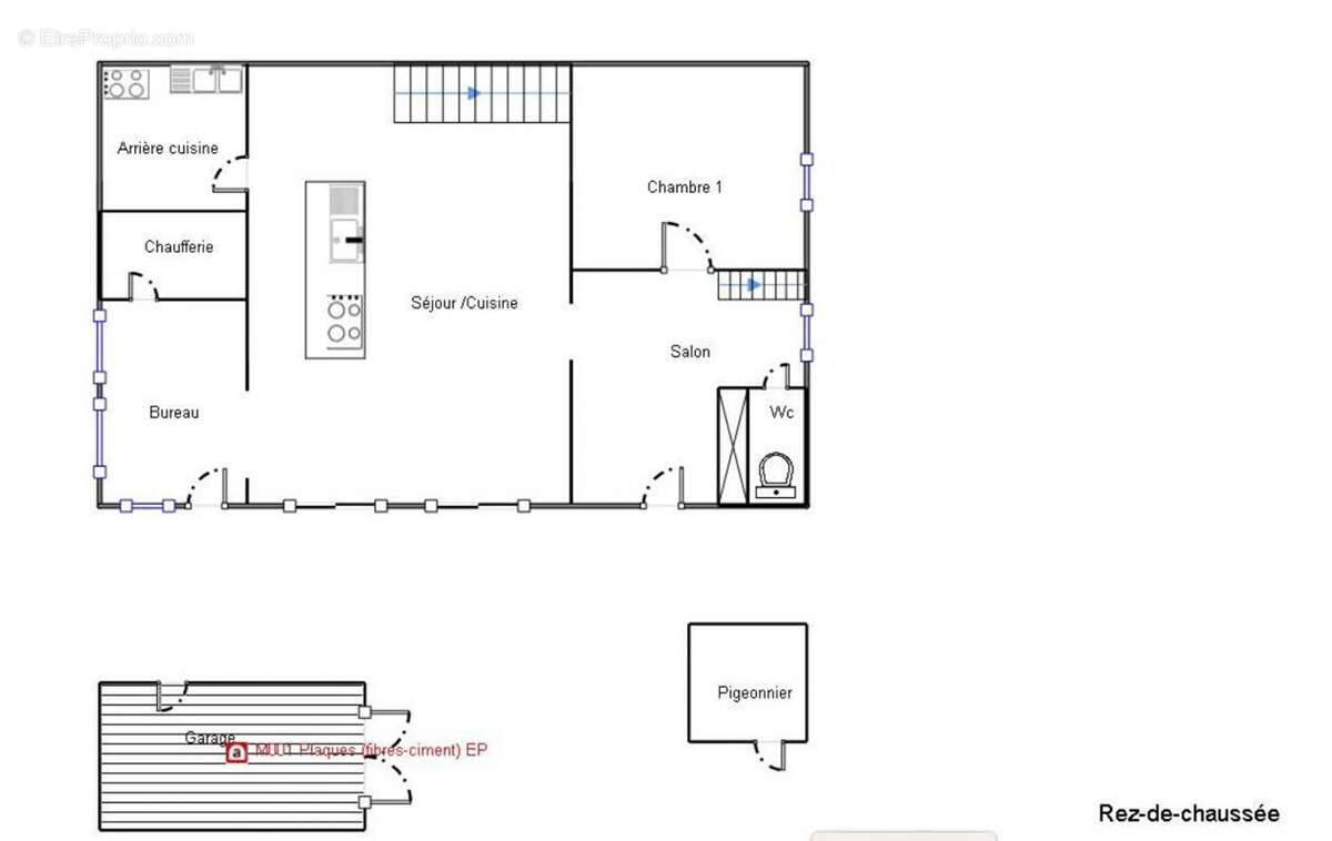
REZ-DE-CHAUSSÉE (parfait pour la vie de famille ) :
Grande entrée (19 m²) avec cheminée en pierres d'époque
Séjour spacieux (57 m²) - l'espace central pour se retrouver
Cuisine bipartite : espace ouvert convivial + arrière-cuisine équipée
Chambre parentale avec placard intégré
WC séparé
Véranda - prolongement naturel vers le jardin
Buanderie et mezzanine aux usages multiples
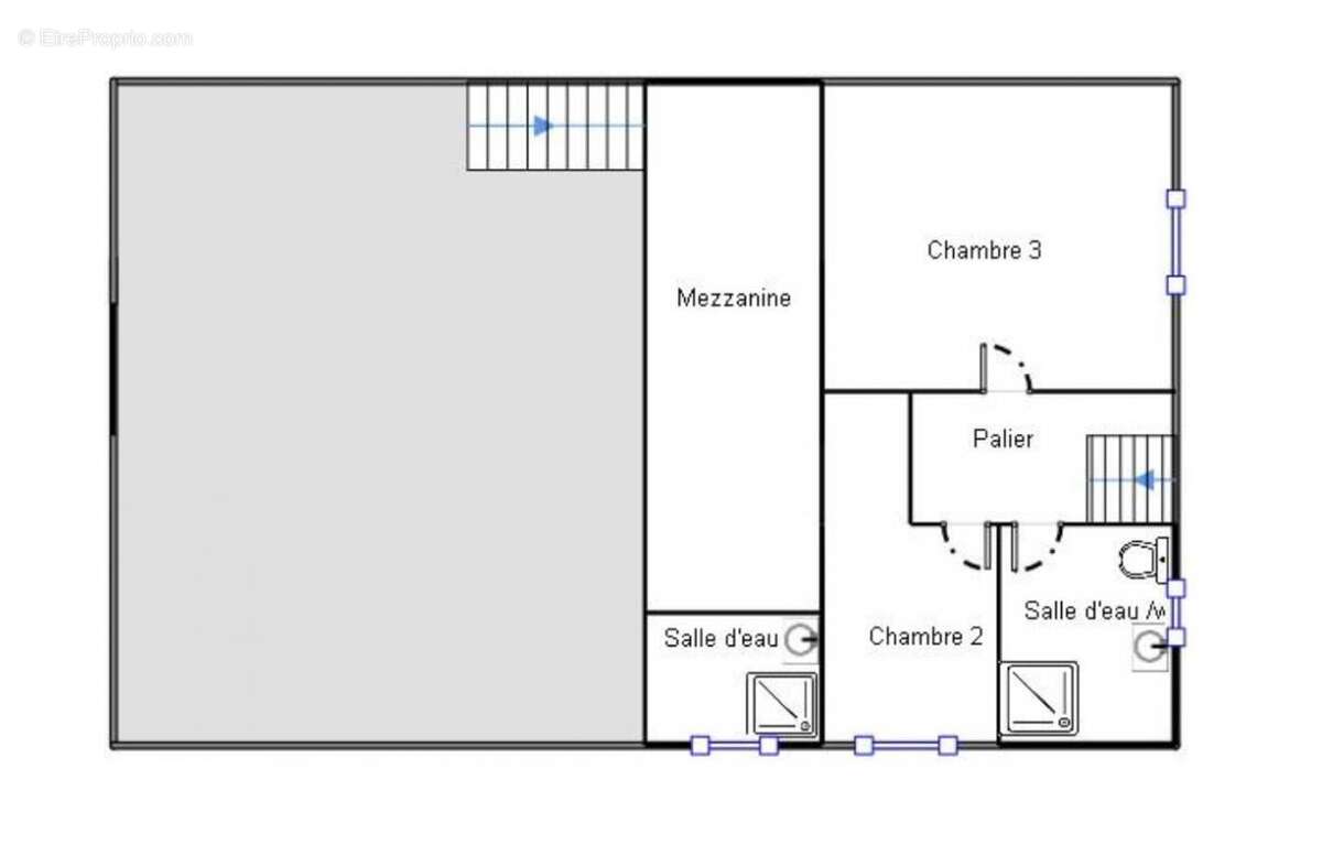
ÉTAGE (l'espace nuit des enfants). :
2 chambres idéales pour les enfants
Salle d'eau complète
Une grande mezzanine surplombant le séjour

UN EXTERIEUR à taille humaine

Le terrain de 424 m² représente l'équilibre parfait pour une jeune famille.
Surface idéale pour profiter sans subir l'entretien d'un grand jardin
Espace terrasse généreux pour les repas en extérieur
Coin potager pour initier les enfants au jardinage
Vue sur le pigeonnier : un décor unique au quotidien

ÉQUIPEMENTS et PERFORMANCES

Confort moderne :
Chauffage central gaz de ville avec plancher chauffant RDC
Volets aluminium et double-vitrage
Tout à l'égout

Performance énergétique : DPE classe C GES classe C
Charges énergétiques estimées : 1 490 euros à 2 070 euros / an
Charges courantes : Taxe foncière 618 euros/an

PRIX : 266 000 euros (honoraires charge vendeur)
Idéal pour : Petite famille recherchant le charme de l'ancien dans un cadre pratique et authentique

Pour visiter et vous accompagner dans votre projet, contactez Jean Marie DELETRAIN, au [Coordonnées masquées] ou, par courriel à [Coordonnées masquées].
Selon l'article L.561.5 du Code Monétaire et Financier, pour l'organisation de la visite, la présentation d'une pièce d'identité vous sera demandée.
Cette présente annonce a été rédigée sous la responsabilité éditoriale de Jean Marie DELETRAIN agissant sous le statut d'agent commercial immatriculé au RSAC Bergerac 325262749 auprès de SAS PROPRIETES PRIVEES, au capital de 44 920 euros, ZAC LE CHÊNE FERRÉ - 44 ALLÉE DES CINQ CONTINENTS 44120 VERTOU; SIRET 487 624 777 00040, RCS Nantes. Carte Professionnelle Transactions sur immeubles et fonds de commerce (T) et Gestion immobilière (G) n°CPI 44[Coordonnées masquées]10 388 délivrée par la CCI Nantes - Saint Nazaire. Compte séquestre n°3[Coordonnées masquées] BPA SAINT-SEBASTIEN-SUR-LOIRE (44230). Garantie GALIAN-SMABTP - 89 rue de la Boétie, 75008 Paris - n°28137 J pour 2 000 000 euros pour T et 120 000 euros pour G. Assurance responsabilité civile professionnelle par GALIAN-SMABTP n° de police 28137.J
Mandat réf : 395947 - Le professionnel garantit et sécurise votre projet immobilier.

Jean Marie DELETRAIN (EI) Agent Commercial - Numéro RSAC : Bergerac 325262749 - .
Les informations sur les risques auxquels ce bien est exposé sont disponibles sur le site Géorisques : www. georisques. gouv. fr
Voir plus

Référence: 395947JEMD
Honoraires à la charge du vendeur.
DPE
A
B
C
D
E
F
G
GES
A
B
C
D
E
F
G

Prêt immobilier

Vous souhaitez connaître votre capacité d’emprunt et trouver le meilleur crédit immobilier ?
Réaliser une simulation gratuite

Maison à VELINES
Maison à VELINES
Maison à VELINES
Maison à VELINES
Maison à VELINES
Maison à VELINES
Maison à VELINES
Maison à VELINES
Maison à VELINES
Maison à VELINES
Maison à VELINES
Maison à VELINES
Ce site est protégé par reCAPTCHA la Politique de confidentialité et les Conditions d’utilisation de Google s’appliquent.
Obtenir un prêt immobilier au meilleur taux ?

En poursuivant votre navigation sans modifier vos paramètres, vous acceptez l'utilisation de cookies susceptibles de réaliser des statistiques de visite. Cliquez ici pour plus d'informations