Bénéficiez des services de nos partenaires locaux soigneusement sélectionnés
pour vous accompagner dans votre parcours d'achat immobilier

La seyne sur mer - collines de tamaris -t4 avec terrasse, cave et garage

— La Seyne-Sur-Mer 83500 —
299 000 €
90 m²
4 pièces
ascenseur

Nos partenaires locaux
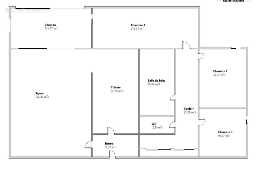
T4 en rez de chaussée avec terrasse, cave et garage Sur le secteur apprécié des Collines de Tamaris, votre agence Rivoli Immobilier vous présente ce joli T4 . Au rez de chaussée d'une résidence sécurisée et récemment ravalée , cet appartement de 78m2 carrez se compose d'une entrée , un spacieux séjour de 22m2 et sa cuisine ouverte , un couloir desservant la partie nuit et ses 3 chambres, une salle de bain , un wc indépendant . Une jolie loggia de 11,70m donnant accès à un bel extérieur de plus de 30m2 dans une environnement verdoyant. Proche de toutes les commodités ( écoles , commerces , transports ) cet appartement est idéal pour y accueillir une famille ou un foyer en recherche d'appartement confortable. Une cave ainsi qu'un garage viennent parfaire ce bien . Ravalement de toiture et façade réalisés en 2021 Chaudière changée en 2023 , porte blindée. Double vitrage avec volets electriques Charges 143 euros / mois Taxe foncière 1722 euros Copropriété de 427 lots - dont 281 lots habitation. (Pas de procédure en cours). Charges annuelles : 572 euros.
Voir plus

Référence: 1177
Bien en copropriété. Nombre de lots : 427. Charges de copropriété : 572 €.
Honoraires à la charge du vendeur.
DPE
A
B
C
D
E
F
G
GES
A
B
C
D
E
F
G

Prêt immobilier

Vous souhaitez connaître votre capacité d’emprunt et trouver le meilleur crédit immobilier ?
Réaliser une simulation gratuite

Appartement à LA SEYNE-SUR-MER
Appartement à LA SEYNE-SUR-MER
Appartement à LA SEYNE-SUR-MER
Appartement à LA SEYNE-SUR-MER
Appartement à LA SEYNE-SUR-MER
Appartement à LA SEYNE-SUR-MER
Appartement à LA SEYNE-SUR-MER
Appartement à LA SEYNE-SUR-MER
Ce site est protégé par reCAPTCHA la Politique de confidentialité et les Conditions d’utilisation de Google s’appliquent.
Obtenir un prêt immobilier au meilleur taux ?

En poursuivant votre navigation sans modifier vos paramètres, vous acceptez l'utilisation de cookies susceptibles de réaliser des statistiques de visite. Cliquez ici pour plus d'informations