Bénéficiez des services de nos partenaires locaux soigneusement sélectionnés
pour vous accompagner dans votre parcours d'achat immobilier

Villa t5 a mesigny avec tres beau terrain

— Mesigny 74330 —
569 000 €
112 m² / 1 102 m²
5 pièces
parkingjardin

Nos partenaires locaux
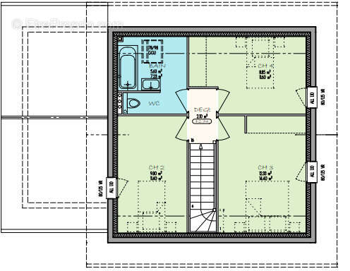
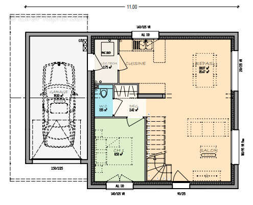
cette villa sera édifiée sur une parcelle de 1102 m2 au total (incluant un jardin agricole arboré d'un noyer de 199 m2) située juste au dessus du centre bourg ,accessible à pied . Astucieusement imaginée, la villa de 112 m2 utiles comprend 3 chambres et un bureau, ainsi qu' un garage en annexe. Pompe à chaleur, très bon niveau d'équipements (nous consulter pour les détails). Vous profiterez d'un terrain tout plat, donnant sur la campagne. Ce projet est personnalisable. Illustration d'artiste. Prix hors frais de notaire du terrain.
Voir plus

Référence: 284bis
Barème des honoraires

Prêt immobilier

Vous souhaitez connaître votre capacité d’emprunt et trouver le meilleur crédit immobilier ?
Réaliser une simulation gratuite

Maison à MESIGNY
Maison à MESIGNY
Maison à MESIGNY
Maison à MESIGNY
Maison à MESIGNY
Maison à MESIGNY
Ce site est protégé par reCAPTCHA la Politique de confidentialité et les Conditions d’utilisation de Google s’appliquent.
Obtenir un prêt immobilier au meilleur taux ?

En poursuivant votre navigation sans modifier vos paramètres, vous acceptez l'utilisation de cookies susceptibles de réaliser des statistiques de visite. Cliquez ici pour plus d'informations