Exclusivité : plateau à aménager en logement ou en bureaux

— Raon-L'etape 88110 —
43 000 €
216 m²
1 pièce

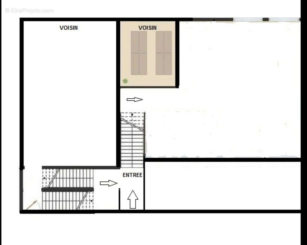
Ce plateau de 216.5m2 est situé au centre-ville de Raon l’Etape, au deuxième étage d’une copropriété.
L’espace étant d’un seul tenant, il peut être transformé en bureaux ou en logement (type loft).
Possibilité d’agrandir les fenêtres existantes.
Nombreux commerces en bas de l’immeuble.
Nombre de lots dans la copropriété : 20
Faible taxe foncière.
Charges annuelle (eau comprise) : 1380€
Honoraires forfaitaires à la charge de l’acquéreur : 4000€ TTC
(Prix hors honoraires : 39 000€)
Voir plus

Référence: 285
Bien en copropriété. Charges de copropriété : 1380 €.
Honoraires d'agence de 10.26% à la charge de l'acquéreur

Prêt immobilier

Vous souhaitez connaître votre capacité d’emprunt et trouver le meilleur crédit immobilier ?
Réaliser une simulation gratuite

Appartement à RAON-L'ETAPE
Appartement à RAON-L'ETAPE
Appartement à RAON-L'ETAPE
Appartement à RAON-L'ETAPE
Ce site est protégé par reCAPTCHA la Politique de confidentialité et les Conditions d’utilisation de Google s’appliquent.
Obtenir un prêt immobilier au meilleur taux ?

En poursuivant votre navigation sans modifier vos paramètres, vous acceptez l'utilisation de cookies susceptibles de réaliser des statistiques de visite. Cliquez ici pour plus d'informations