Bénéficiez des services de nos partenaires locaux soigneusement sélectionnés
pour vous accompagner dans votre parcours d'achat immobilier

Maison neuve la rivere de corps - plateau 180m2

— La Riviere-De-Corps 10440 —
279 000 €
178 m² / 312 m²
6 pièces
parkingjardin

Nos partenaires locaux
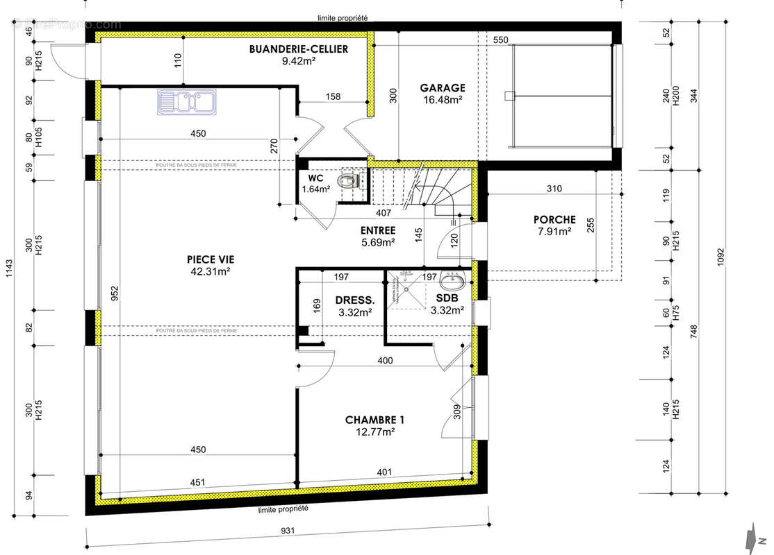
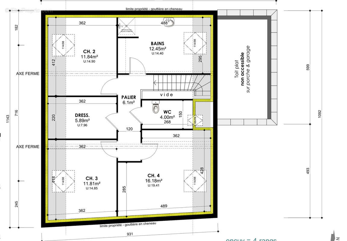
A La Riviere de Corps, venez découvrir cette superbe maison NEUVE livrée CLES EN MAINS ! La maison fait 146m2 habitables sur la base des plans ci-joints mais l'aménagement intérieur peut être modifié selon vos envies. La maison est livrée hors cuisine, hors peinture et hors parquet dans les chambres mais tout le reste est livré TERMINE ! Les extérieurs sont livrés avec la clôture, les terres remises en place, l'assise pour la terrasse et du concassé compacté devant la maison. La maison est vendue avec la Dommage-Ouvrage et l'étude thermique ainsi que l'étude de sol sont fournies. L'idéal pour une famille qui souhaite réaliser son rêve d'acquisition dans le neuf et bénéficier du Prêt à Taux 0% ! La présente annonce immobilière a été rédigée sous la responsabilité éditoriale de Mme Justine PYS, agent commerciale immatriculée au RSAC de Troyes sous le numéro 539 003 186.
Voir plus

Référence: 2736
Honoraires à la charge du vendeur.
Barème des honoraires

Prêt immobilier

Vous souhaitez connaître votre capacité d’emprunt et trouver le meilleur crédit immobilier ?
Réaliser une simulation gratuite

Maison à LA RIVIERE-DE-CORPS
Maison à LA RIVIERE-DE-CORPS
Maison à LA RIVIERE-DE-CORPS
Maison à LA RIVIERE-DE-CORPS
Maison à LA RIVIERE-DE-CORPS
Maison à LA RIVIERE-DE-CORPS
Maison à LA RIVIERE-DE-CORPS
Maison à LA RIVIERE-DE-CORPS
Maison à LA RIVIERE-DE-CORPS
Maison à LA RIVIERE-DE-CORPS
Maison à LA RIVIERE-DE-CORPS
Ce site est protégé par reCAPTCHA la Politique de confidentialité et les Conditions d’utilisation de Google s’appliquent.
Obtenir un prêt immobilier au meilleur taux ?

En poursuivant votre navigation sans modifier vos paramètres, vous acceptez l'utilisation de cookies susceptibles de réaliser des statistiques de visite. Cliquez ici pour plus d'informations