Bénéficiez des services de nos partenaires locaux soigneusement sélectionnés
pour vous accompagner dans votre parcours d'achat immobilier

Appartement 96m² à marseille-10e

— Marseille-10e 13010 —
219 900 €
96 m²
4 pièces
parkingbalcon/terrasseascenseur

Nos partenaires locaux
' NEW LOOK, NEW LIFE '

10ÈME – La Capelette / La Timone

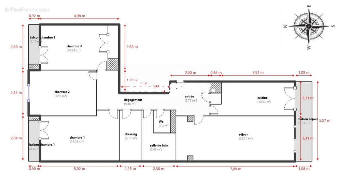
Type 4 de 96m² avec balcons de 10m²
À rafraichir dans son ensemble
+ Garage simple fermé en sous-sol en SUS et place de parking en surface en SUS


Idéalement situé à proximité des axes autoroutiers, transports en commun, commerces,
commodités du quotidien et établissements scolaires.


Dans une copropriété à taille humaine de 38 lots, The Agency vous propose en exclusivité
un type 4 de 96.27m² Loi Carrez au 3ème étage sur 9.


Il se compose de la façon suivante :


Côté jour :


Une entrée, un salon /séjour donnant accès à un balcon de 6m² exposée Sud
et une cuisine non meublée et non équipée.


Côté nuit :


Un grand dégagement, une chambre, une chambre avec balcon de 2m² et
une chambre avec placard de rangement et balcon de 2m².
Un cellier, une salle de bain avec WC et un WC indépendant.


Le bien est équipé d'huisseries en PVC double vitrage, de volets roulants manuels
et d'un store banne électrique. Tableau électrique aux normes.

Appartement à rafraichir dans son intégralité.


Possibilité d'acquérir un garage simple de 15m² fermé en sous-sol en SUS
ainsi qu'une place de parking en surface en SUS.

Charges Apt : 115.41€ /mois
(Comprenant eau froide, entretien des parties communes, portail automatique, ascenseur,
assurances copropriété et honoraires syndic)
Charges Parking : 4.57€ /mois + Garage : 2.40€ /mois


Taxe foncière : 1 423.00€ /an

'The Agency, la Révolution immobilière...'


Honoraires inclus de 5.72% TTC à la charge de l'acquéreur. Prix hors honoraires 208 000 €. Dans une copropriété de 38 lots. Quote-part moyenne du budget prévisionnel 1 385 €/an. Aucune procédure n'est en cours. Classe énergie C, Classe climat A Montant estimé des dépenses annuelles d'énergie pour un usage standard : entre 1070.00 € et 1480.00 € sur les années 2021, 2022 et 2023 (abonnements compris). Les informations sur les risques auxquels ce bien est exposé sont disponibles sur le site Géorisques : georisques.gouv.fr.

Votre conseiller The Agency : Maxime SANCHIS
Agent commercial (Entreprise individuelle)
Voir plus

Référence: VA3380-THEAGENCY
Bien en copropriété. Nombre de lots : 38. Charges de copropriété : 1385 €.
Honoraires d'agence de 5.72% à la charge de l'acquéreur
Barème des honoraires
DPE
A
B
C
D
E
F
G
GES
A
B
C
D
E
F
G

Prêt immobilier

Vous souhaitez connaître votre capacité d’emprunt et trouver le meilleur crédit immobilier ?
Réaliser une simulation gratuite

Appartement à MARSEILLE-10E
Appartement à MARSEILLE-10E
Appartement à MARSEILLE-10E
Appartement à MARSEILLE-10E
Appartement à MARSEILLE-10E
Appartement à MARSEILLE-10E
Appartement à MARSEILLE-10E
Appartement à MARSEILLE-10E
Appartement à MARSEILLE-10E
Ce site est protégé par reCAPTCHA la Politique de confidentialité et les Conditions d’utilisation de Google s’appliquent.
Obtenir un prêt immobilier au meilleur taux ?

En poursuivant votre navigation sans modifier vos paramètres, vous acceptez l'utilisation de cookies susceptibles de réaliser des statistiques de visite. Cliquez ici pour plus d'informations