Bénéficiez des services de nos partenaires locaux soigneusement sélectionnés
pour vous accompagner dans votre parcours d'achat immobilier

Maison de plain pied 2 ch et dépendance avec studio

— Le Fidelaire 27190 —
189 000 €
95 m² / 1 476 m²
6 pièces
parkingjardin

Nos partenaires locaux
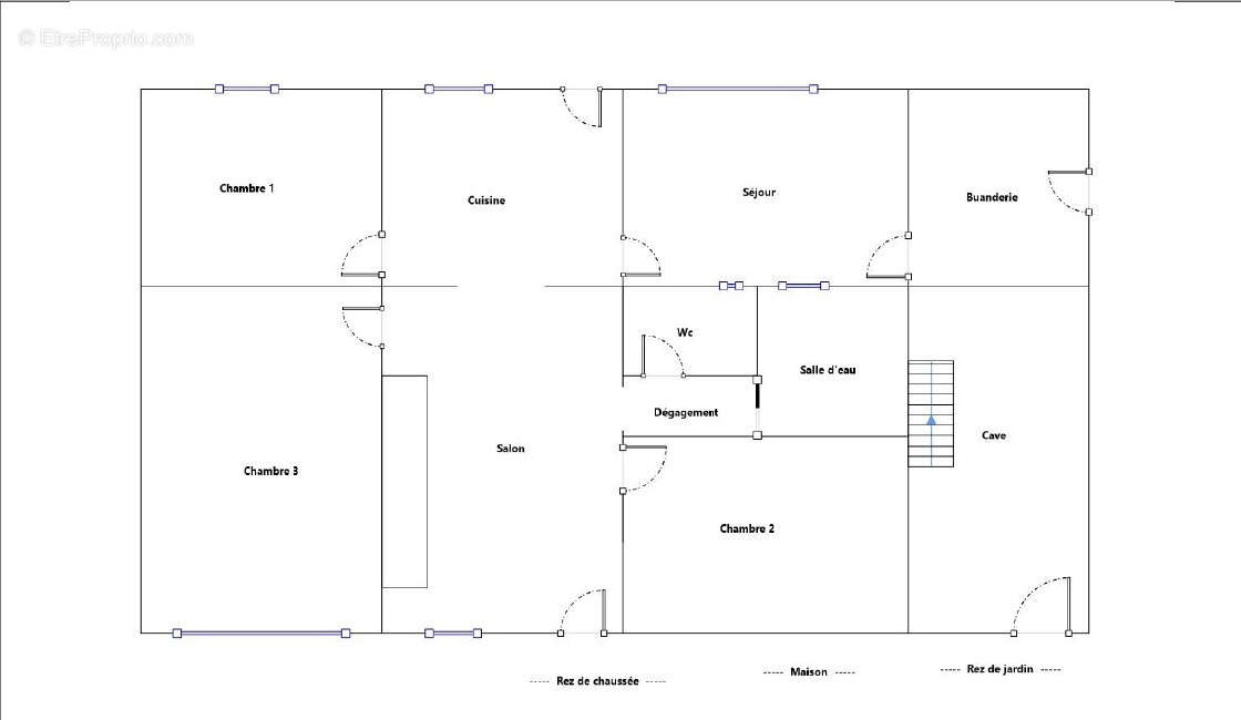
Sur la commune du Fidelaire, maison à colombages de plain pied, parfaitement adaptée aux personnes à mobilité réduite. Dépendance de plain pied avec studio de 46 m2 également accessible PMR. La maison principale, de 95 m2, se compose d'une cuisine équipée, une arrière cuisine - buanderie, un espace repas avec baie donnant sur le jardin, un séjour double avec cheminée insert, deux chambres, une salle d'eau avec douche à l'italienne. Cellier attenant avec accès à un beau grenier aménageable. Chauffage gaz, fenêtres double vitrage, assainissement par fosse toutes eaux. L'annexe abrite un studio permettant une seconde habitation (cuisine ouverte sur vaste pièce à vivre et salle d'eau réalisée pour PMR) et un garage de plus de 40 m2. Bûcher à l'arrière. Autre petit garage sur le terrain. L'ensemble sur un terrain de 1476 m2. Idéal pour un artisan souhaitant allier son activité et sa résidence (visibilité).
Voir plus

Référence: 4795
Honoraires à la charge du vendeur.
Barème des honoraires
DPE
A
B
C
D
E
F
G
GES
A
B
C
D
E
F
G

Prêt immobilier

Vous souhaitez connaître votre capacité d’emprunt et trouver le meilleur crédit immobilier ?
Réaliser une simulation gratuite

Maison à LE FIDELAIRE
Maison à LE FIDELAIRE
Maison à LE FIDELAIRE
Maison à LE FIDELAIRE
Maison à LE FIDELAIRE
Maison à LE FIDELAIRE
Maison à LE FIDELAIRE
Maison à LE FIDELAIRE
Maison à LE FIDELAIRE
Maison à LE FIDELAIRE
Maison à LE FIDELAIRE
Maison à LE FIDELAIRE
Maison à LE FIDELAIRE
Maison à LE FIDELAIRE
Maison à LE FIDELAIRE
Maison à LE FIDELAIRE
Maison à LE FIDELAIRE
Maison à LE FIDELAIRE
Maison à LE FIDELAIRE
Maison à LE FIDELAIRE
Maison à LE FIDELAIRE
Maison à LE FIDELAIRE
Maison à LE FIDELAIRE
Maison à LE FIDELAIRE
Maison à LE FIDELAIRE
Maison à LE FIDELAIRE
Maison à LE FIDELAIRE
Maison à LE FIDELAIRE
Maison à LE FIDELAIRE
Maison à LE FIDELAIRE
Maison à LE FIDELAIRE
Maison à LE FIDELAIRE
Ce site est protégé par reCAPTCHA la Politique de confidentialité et les Conditions d’utilisation de Google s’appliquent.
Obtenir un prêt immobilier au meilleur taux ?

En poursuivant votre navigation sans modifier vos paramètres, vous acceptez l'utilisation de cookies susceptibles de réaliser des statistiques de visite. Cliquez ici pour plus d'informations