Bénéficiez des services de nos partenaires locaux soigneusement sélectionnés
pour vous accompagner dans votre parcours d'achat immobilier

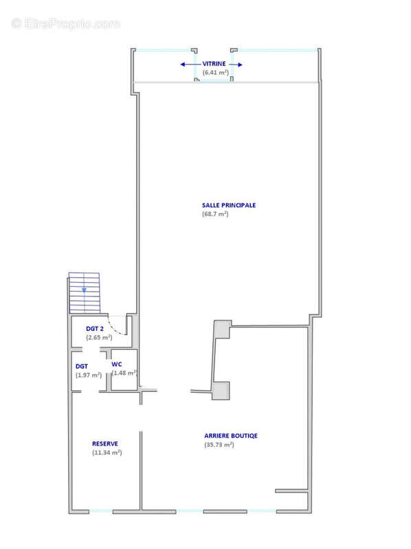
Local commercial, rue de rome 125m2 + 114m2 de caves et possibilité d'un niveau supl.

— Marseille-6e 13006 —
298 000 €
125 m²

Nos partenaires locaux
Rue de Rome, au niveau Prefecture, MURS d'un LOCAL COMMERCIAL de 125m2, plus 114m2 de caves et la possibilité de créer un niveau supplementaire, en mezzanine, grâce à 4m80 de hauteur sous plafond. Possibilié de diviser le local avec une 2eme entrée sur la rue de la Palud...Très bel emplacement! et fort potentiel grâce à une belle surface commerciale, mise en valeur par presque 7m de vitrine , du stockage en sous sol et des bureaux à prévoir en mezzanine! VENDU libre de toute occupation
Voir plus

Référence: 861
Honoraires à la charge du vendeur.
Barème des honoraires

Prêt immobilier

Vous souhaitez connaître votre capacité d’emprunt et trouver le meilleur crédit immobilier ?
Réaliser une simulation gratuite

Commerce à MARSEILLE-6E
Commerce à MARSEILLE-6E
Commerce à MARSEILLE-6E
Commerce à MARSEILLE-6E
Commerce à MARSEILLE-6E
Commerce à MARSEILLE-6E
Commerce à MARSEILLE-6E
Commerce à MARSEILLE-6E
Commerce à MARSEILLE-6E
Commerce à MARSEILLE-6E
Ce site est protégé par reCAPTCHA la Politique de confidentialité et les Conditions d’utilisation de Google s’appliquent.
Obtenir un prêt immobilier au meilleur taux ?

En poursuivant votre navigation sans modifier vos paramètres, vous acceptez l'utilisation de cookies susceptibles de réaliser des statistiques de visite. Cliquez ici pour plus d'informations