Bénéficiez des services de nos partenaires locaux soigneusement sélectionnés
pour vous accompagner dans votre parcours d'achat immobilier

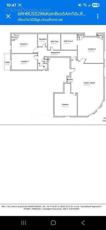
Appartement 5 pièces 1 garage 124,99m2

— Saint-Etienne 42000 —
155 000 €
124 m²
5 pièces
balcon/terrasseascenseur

Nos partenaires locaux
Laissez vous charmer par ce jolie Appartement place bellevue de 125 m2 situé au 1er étage d'un immeuble très bien entretenu, sécurisé et avec ascenseur..Il offre un vaste séjour de 46,66 m2 avec cuisine ouverte entièrement équipée, 4 chambres dont une suite parentale, 1 loggia,1 buanderie , Ce bien, rénové avec goût bénéficie de deux salles d'eau et d'une salle de bains. Les huisseries sont récentes, le chauffage est collectif au gaz et la chaudière vient d'être changée, l'isolation et la façade extérieure sera faite en 2026. Vous bénéficierez d'une cave et d'un garage
La conception de cet appartement peut convenir à une famille nombreuse, voir à une colocation de 3 ou 4 personnes.
Les commerces, les écoles, le tram et la gare SNCF sont proches. Le très beau marché de la place Bellevue vous accueillera plusieurs fois par semaine. N'attendez plus il est fait pour vous.
Pour plus d'informations la vidéo est sur mon site Alexandre serre bsk immobilier.

Cette annonce référence 303083 vous est présentée par votre agent commercial BSK Immobilier ALEXANDRE SERRE (EI) immatriculé au RSAC de SAINT-ETIENNE (42000) sous le numéro 89857559200016.

Prix du bien : 155 000,00 €
Les honoraires d'agence sont à la charge du vendeur.

A propos de la copropriété :
Pas de procédure en cours.
Nombre de lots : 10
Charges prévisionnelles annuelles : 3 000,00 €

A propos des performances énergétiques :
Date de réalisation du diagnostic énergétique : 25/03/2025
Score DPE : 176 kWhEP/m²/an
Score GES : 38 kgepCO2/m²/an
Montant estimé des dépenses annuelles d'énergie pour un usage standard : entre 1770.00 € et 2440.00 € par an. Prix moyens des énergies indexés sur l'année 2023 (abonnements compris).

Les informations sur les risques auxquels ce bien est exposé sont disponibles sur le site Géorisques : www.georisques.gouv.fr
Voir plus

Référence: 303083
Bien en copropriété. Nombre de lots : 10. Charges de copropriété : 250 €.
Honoraires à la charge du vendeur.
DPE
A
B
C
D
E
F
G
GES
A
B
C
D
E
F
G

Prêt immobilier

Vous souhaitez connaître votre capacité d’emprunt et trouver le meilleur crédit immobilier ?
Réaliser une simulation gratuite

Appartement à SAINT-ETIENNE
Appartement à SAINT-ETIENNE
Appartement à SAINT-ETIENNE
Appartement à SAINT-ETIENNE
Appartement à SAINT-ETIENNE
Appartement à SAINT-ETIENNE
Appartement à SAINT-ETIENNE
Appartement à SAINT-ETIENNE
Appartement à SAINT-ETIENNE
Appartement à SAINT-ETIENNE
Appartement à SAINT-ETIENNE
Appartement à SAINT-ETIENNE
Appartement à SAINT-ETIENNE
Appartement à SAINT-ETIENNE
Appartement à SAINT-ETIENNE
Appartement à SAINT-ETIENNE
Appartement à SAINT-ETIENNE
Appartement à SAINT-ETIENNE
Ce site est protégé par reCAPTCHA la Politique de confidentialité et les Conditions d’utilisation de Google s’appliquent.
Obtenir un prêt immobilier au meilleur taux ?

En poursuivant votre navigation sans modifier vos paramètres, vous acceptez l'utilisation de cookies susceptibles de réaliser des statistiques de visite. Cliquez ici pour plus d'informations