Bénéficiez des services de nos partenaires locaux soigneusement sélectionnés
pour vous accompagner dans votre parcours d'achat immobilier

Maison à rénover montpellier sud chemin de moulares près d'arènes

— Montpellier 34000 —
279 000 €
138 m² / 272 m²
5 pièces
parkingjardin

Nos partenaires locaux
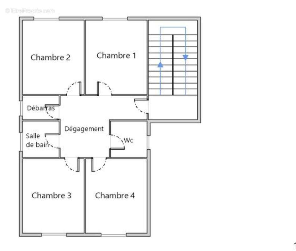
Opportunité rare à ce prix, villa à rénover complètement, donnant sur un axe fréquenté de l'entrée Sud de Montpellier. Les faces avant et latérales du bien sont donc très visibles, idéal pour un commerce, des bureaux, ou à transformer en une petite co-propriété car 3 stationnements sont dors et déjà présents sur la propriété, en 2 garages distincts. L'arrière de la maison donne sur un jardin et des maisons, bien plus au calme que le devant qui donne sur l'avenue. A l'étage de cette maison on peut facilement détacher deux appartements de type F2. La surface totale est de 137,5 m2 et la surface habitable de 107,65, le tout sur une parcelle de 272m2 avec un espace jardin assez grand. Caractéristiques : Maison entièrement à réhabiliter : sols, murs, plafonds, système de chauffage, menuiseries, à repenser selon votre activité. Le bâti est en bon état. Accessibilité forte : plusieurs lignes de bus à proximité, connexion facile aux grands axes, arrêt de bus / tram à distance raisonnable. Potentiel commercial élevé : idéal pour agences bancaire ou assurance, boutiques, bureaux de services, restauration rapide, coworking, ou toute activité qui gagne à être vue et à bénéficier du passage. Eventualité de faire un petit local commercial au RDC et 2 appartements à l'étage. Jardin et 2 garages, un de deux places et un petit d'une place. Cage d'escalier desservant l'étage qui peut être séparé du RDC. A visiter rapidement, demandez Clément Fontanel
Voir plus

Honoraires à la charge du vendeur.
Barème des honoraires
DPE
A
B
C
D
E
F
G
GES
A
B
C
D
E
F
G

Prêt immobilier

Vous souhaitez connaître votre capacité d’emprunt et trouver le meilleur crédit immobilier ?
Réaliser une simulation gratuite

Maison à MONTPELLIER
Maison à MONTPELLIER
Maison à MONTPELLIER
Maison à MONTPELLIER
Maison à MONTPELLIER
Maison à MONTPELLIER
Maison à MONTPELLIER
Maison à MONTPELLIER
Maison à MONTPELLIER
Maison à MONTPELLIER
Maison à MONTPELLIER
Maison à MONTPELLIER
Maison à MONTPELLIER
Maison à MONTPELLIER
Maison à MONTPELLIER
Maison à MONTPELLIER
Maison à MONTPELLIER
Maison à MONTPELLIER
Ce site est protégé par reCAPTCHA la Politique de confidentialité et les Conditions d’utilisation de Google s’appliquent.
Obtenir un prêt immobilier au meilleur taux ?

En poursuivant votre navigation sans modifier vos paramètres, vous acceptez l'utilisation de cookies susceptibles de réaliser des statistiques de visite. Cliquez ici pour plus d'informations