Bénéficiez des services de nos partenaires locaux soigneusement sélectionnés
pour vous accompagner dans votre parcours d'achat immobilier

Maison 105m² à abzac

— Abzac 33230 —
166 000 €
105 m² / 230 m²
5 pièces
parkingbalcon/terrasse

Nos partenaires locaux
33230 ABZAC - IMMEUBLE - 5 PIECES - 105M2 - ENVIRONNEMENT CALME - PROCHE COMMODITES - FORT POTENTIEL

Efficity, l'agence qui estime votre bien en ligne, vous propose cet immeuble de 105 m² sur 2 niveaux, située en plein cœur du village d'Abzac, à proximité immédiate du château et à 5 minutes à pied des commodités.

Idéalement localisée, dans un environnement calme et verdoyant elle se trouve à seulement 5 minutes en voiture de la gare SNCF de Coutras (reliant Bordeaux Saint-Jean en 35 minutes) et de ses nombreux commerces, ainsi que de l'autoroute A89, pour des déplacements facilités.

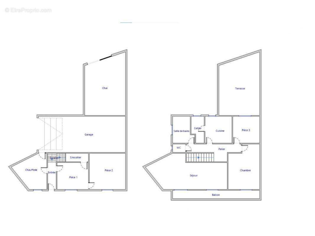
Cette maison à fort potentiel se compose :

Au rez-de-chaussée : de deux chambres spacieuses et un espace buanderie
À l'étage : un double séjour lumineux avec balcon avec une vue magnifique sur la vallée, une cuisine conviviale, une salle de bains, un WC, un cellier, un bureau donnant sur une superbe terrasse de 20 m² (parfait pour télétravailler) et une chambre supplémentaire avec accès au balcon.

À l'extérieur, profitez d'une arrière-cour avec deux garages aménageables et d'un jardin privatif idéal pour vos projets de loisirs ou de détente.

Cette maison est idéale pour les primo-accédants, entrepreneurs ou investisseurs

À visiter sans tarder ! Contactez votre consultant effiCity Jean-Luc Augé au [Coordonnées masquées] pour plus d'informations et organiser une visite.
Les informations sur les risques auxquels ce bien est exposé sont disponibles sur le site Georisque : georisques. gouv. fr
Jean-Luc Augé - EI - est Agent Commercial mandataire en immobilier, immatriculé au Registre Spécial des Agents Commerciaux du Tribunal de Commerce de Libourne sous le n°912346145.
Siège social du mandant : effiCity, 48 avenue de Villiers - 75017 PARIS - Société par Actions Simplifiée, société au capital de 132 373,05 euros, immatriculée au RCS Paris 497 617 746 et titulaire de la Carte professionnelle CPI 75[Coordonnées masquées]02 025 - CCI Paris IDF - Caisse de Garantie : GALIAN Assurances 89 rue de la Boétie 75008 Paris
Voir plus

Référence: 191127
Honoraires à la charge du vendeur.
Barème des honoraires
DPE
A
B
C
D
E
F
G
GES
A
B
C
D
E
F
G

Prêt immobilier

Vous souhaitez connaître votre capacité d’emprunt et trouver le meilleur crédit immobilier ?
Réaliser une simulation gratuite

Maison à ABZAC
Maison à ABZAC
Maison à ABZAC
Maison à ABZAC
Maison à ABZAC
Maison à ABZAC
Maison à ABZAC
Maison à ABZAC
Maison à ABZAC
Maison à ABZAC
Maison à ABZAC
Maison à ABZAC
Ce site est protégé par reCAPTCHA la Politique de confidentialité et les Conditions d’utilisation de Google s’appliquent.
Obtenir un prêt immobilier au meilleur taux ?

En poursuivant votre navigation sans modifier vos paramètres, vous acceptez l'utilisation de cookies susceptibles de réaliser des statistiques de visite. Cliquez ici pour plus d'informations