Maison 120m² à saint-pierre

— Saint-Pierre 97410 —
467 000 €
120 m²
4 pièces
parkingbalcon/terrasse

MAXImmo vous propose dans le secteur prisé de la Cafrine, proche de Grand Bois et des commodités.
Au fond d'une impasse vous trouverez cette superbe villa neuve conçue par un architecte avec sa vue océan.
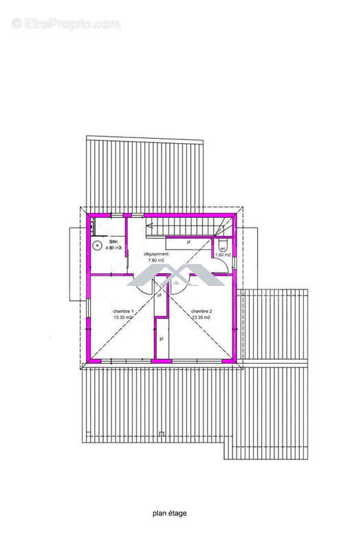
Elle est construite sur deux niveaux, au rez-de-chaussée, cuisine, séjour d'environ 44 m² , wc indépendants, suite parentale avec douche italienne d'environ 18 m².
Séjour et suite parentale ouverts sur une grande terrasse couverte d'environ 25 m².
A l'étage, deux chambres avec placard intégré d'environ 13 m² chacune, dégagement avec placard également douche italienne + wc séparé.
A cela vous rajoutez un abri voiture d'environ 20 m² .
La maison sera vendue avec volets roulants pour les baies vitrées.
Garantie décennale et dommage ouvrage.
Livraison prévue en 2025
Rapport qualité-prix imbattable.
Frais de notaire réduits. Eligible defis Girardin IS

Prix TTC et Honoraires à charge vendeur TTC Mandat n° 12453
Réseau MAXImmo - Pour plus de renseignements contactez Merwan au [Coordonnées masquées] ou par mail à [Coordonnées masquées]
Plus d'informations et consultation de nos tarifs sur www.maximmo.re
Les informations sur les risques auxquels ce bien est exposé sont disponibles sur le site Géorisques : www.georisques.gouv.fr'

Honoraires à la charge du vendeur. Non soumis au DPE. Les informations sur les risques auxquels ce bien est exposé sont disponibles sur le site Géorisques : georisques.gouv.fr.

Votre conseiller MAXImmo : Merwan CORRONT
Agent commercial (Entreprise individuelle)
Voir plus

Référence: 12453 974-4MC-MAXIMMO
Honoraires à la charge du vendeur.
Barème des honoraires

Prêt immobilier

Vous souhaitez connaître votre capacité d’emprunt et trouver le meilleur crédit immobilier ?
Réaliser une simulation gratuite

Maison à SAINT-PIERRE
Maison à SAINT-PIERRE
Maison à SAINT-PIERRE
Maison à SAINT-PIERRE
Maison à SAINT-PIERRE
Ce site est protégé par reCAPTCHA la Politique de confidentialité et les Conditions d’utilisation de Google s’appliquent.
Obtenir un prêt immobilier au meilleur taux ?

En poursuivant votre navigation sans modifier vos paramètres, vous acceptez l'utilisation de cookies susceptibles de réaliser des statistiques de visite. Cliquez ici pour plus d'informations