Bénéficiez des services de nos partenaires locaux soigneusement sélectionnés
pour vous accompagner dans votre parcours d'achat immobilier

Appartement 52m² à saint-brieuc

— Saint-Brieuc 22000 —
119 000 €
52 m²
2 pièces
ascenseur

Nos partenaires locaux
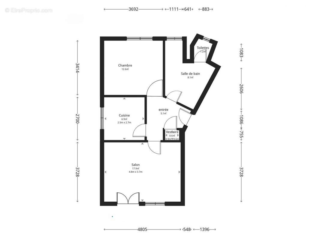
Appartement T2 rénové, hyper-centre, calme et lumineux

Situé Place Du Guesclin, en plein coeur de Saint-Brieuc, cet appartement T2 de 52 m² allie confort et praticité. Vous profiterez d'une belle luminosité et d'un environnement calme grâce à ses ouvertures donnant sur cour, le tout en étant à deux pas de toutes les commodités. Pas travaux à prévoir l'appartement à été rénové en 2022. Idéal premier achat ou investissement locatif.

Localisation idéale :
Transports en commun et gare TGV accessibles à pied
Centre commercial Les Champs
Restaurants, commerces, médecins et services du quotidien
Parking public à proximité

Description de l'appartement :
Entrée desservant une cuisine séparée, un salon lumineux ave fenêtres sur cours, une chambre confortable avec fenetre sur cour également, une belle salle d'eau moderne et un WC fermé.

Chauffage et eau chaude individuels au gaz (Chaudière changée en 2023)
Charges de copropriété : env. 650 € / an
Possibilité de louer un parking rue du Gouedic au tarif résident (env. 25 € / mois).

Prix affiché avec frais d'agence inclus, à la charge du vendeur.

Visite 360 disponible après premier échange.

Pour toute information ou pour organiser une visite, contactez nous rapidement

Honoraires à la charge du vendeur. Dans une copropriété de 70 lots. Aucune procédure n'est en cours. Classe énergie E, Classe climat E Montant moyen estimé des dépenses annuelles d'énergie pour un usage standard, établi à partir des prix de l'énergie de l'année 2021 : entre 1100.00 et 1550.00 €. Les informations sur les risques auxquels ce bien est exposé sont disponibles sur le site Géorisques : georisques.gouv.fr.

Votre conseiller La Promesse Immobilière : Frédéric PALLIET
Agent commercial (Entreprise individuelle)
RSAC 948351382
Voir plus

Référence: VA1904-LAPROMESSEIMMO
Bien en copropriété. Nombre de lots : 70.
Honoraires à la charge du vendeur.
DPE
A
B
C
D
E
F
G
GES
A
B
C
D
E
F
G

Prêt immobilier

Vous souhaitez connaître votre capacité d’emprunt et trouver le meilleur crédit immobilier ?
Réaliser une simulation gratuite

Appartement à SAINT-BRIEUC
Appartement à SAINT-BRIEUC
Appartement à SAINT-BRIEUC
Appartement à SAINT-BRIEUC
Appartement à SAINT-BRIEUC
Appartement à SAINT-BRIEUC
Appartement à SAINT-BRIEUC
Appartement à SAINT-BRIEUC
Appartement à SAINT-BRIEUC
Ce site est protégé par reCAPTCHA la Politique de confidentialité et les Conditions d’utilisation de Google s’appliquent.
Obtenir un prêt immobilier au meilleur taux ?

En poursuivant votre navigation sans modifier vos paramètres, vous acceptez l'utilisation de cookies susceptibles de réaliser des statistiques de visite. Cliquez ici pour plus d'informations