Maison à fort potentiel à bazouges-la-pérouse

— Bazouges-La-Perouse 35560 —
85 000 €
150 m²
5 pièces

Cette spacieuse maison vous offre un projet sur-mesure, idéale pour une famille ou investisseur.
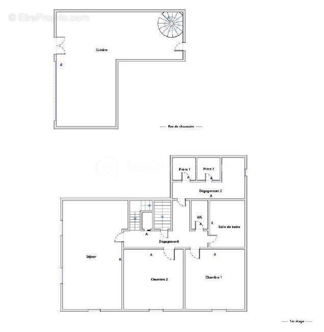
Rez-de-chaussée :
· Grand séjour lumineux (ancien commerce)
· Cuisine aménagée
· Cellier et chaufferie
· WC
Étage :
· 3 chambres
· 1 salle d'eau
· WC
· Un débarras convertible en 4ème chambre
· Un grand grenier
Les plus:
· Toiture en bon état
· Raccordement fibre possible
. De beaux volumes

Emplacement privilégié permettant toutes les commodités à proximité immédiate (écoles, commerces, médecins...).
À 10 min de Combourg, 15 min de Dol-de-Bretagne et du Mont-Saint-Michel. Rennes, Fougères et Saint-Malo accessibles en 30 min.

Parfaite pour Famille ou Investisseurs

Cette annonce référence 303298 vous est présentée par votre agent commercial BSK Immobilier JULIE NOBILET (EI) immatriculé au RSAC de RENNES (35000) sous le numéro 89931049400013.

Prix du bien : 85 000,00 €
Les honoraires d'agence sont à la charge du vendeur.

A propos des performances énergétiques :
Date de réalisation du diagnostic énergétique : 12/05/2023
Score DPE : 297 kWhEP/m²/an
Score GES : 83 kgepCO2/m²/an
Montant estimé des dépenses annuelles d'énergie pour un usage standard : entre 2590.00 € et 3570.00 € par an. Prix moyens des énergies indexés sur l'année 2021 (abonnements compris).

Les informations sur les risques auxquels ce bien est exposé sont disponibles sur le site Géorisques : www.georisques.gouv.fr
Voir plus

Référence: 303298
Honoraires à la charge du vendeur.
DPE
A
B
C
D
E
F
G
GES
A
B
C
D
E
F
G

Prêt immobilier

Vous souhaitez connaître votre capacité d’emprunt et trouver le meilleur crédit immobilier ?
Réaliser une simulation gratuite

Maison à BAZOUGES-LA-PEROUSE
Maison à BAZOUGES-LA-PEROUSE
Maison à BAZOUGES-LA-PEROUSE
Maison à BAZOUGES-LA-PEROUSE
Maison à BAZOUGES-LA-PEROUSE
Maison à BAZOUGES-LA-PEROUSE
Maison à BAZOUGES-LA-PEROUSE
Maison à BAZOUGES-LA-PEROUSE
Maison à BAZOUGES-LA-PEROUSE
Maison à BAZOUGES-LA-PEROUSE
Maison à BAZOUGES-LA-PEROUSE
Maison à BAZOUGES-LA-PEROUSE
Maison à BAZOUGES-LA-PEROUSE
Maison à BAZOUGES-LA-PEROUSE
Maison à BAZOUGES-LA-PEROUSE
Maison à BAZOUGES-LA-PEROUSE
Maison à BAZOUGES-LA-PEROUSE
Ce site est protégé par reCAPTCHA la Politique de confidentialité et les Conditions d’utilisation de Google s’appliquent.
Obtenir un prêt immobilier au meilleur taux ?

En poursuivant votre navigation sans modifier vos paramètres, vous acceptez l'utilisation de cookies susceptibles de réaliser des statistiques de visite. Cliquez ici pour plus d'informations