Bénéficiez des services de nos partenaires locaux soigneusement sélectionnés
pour vous accompagner dans votre parcours d'achat immobilier

Castellar village - maison de village 5p triplex traversant - 114m2 carrez expo ouest

— Castellar 06500 —
360 000 €
114 m²
5 pièces

Nos partenaires locaux
! IDÉAL FAMILLE / PRIMO ACCÉDENT !
Et si vous deveniez propriétaire en plein COEUR DE CASTELLAR à deux pas de MENTON, à la connexion FACILE à MONACO par autoroute ?
Votre agence vous offre l'OPPORTUNITÉ d'acquérir, pour un PRIX TRÈS ATTRACTIF, un 5 PIÈCES en TRIPLEX SANS CHARGES avec le charme de la MAISON DE VILLAGE.
Un village HISTORIQUE niché sur son piton rocheux DOMINANT MENTON et la baie de Garavan, offrant un POINT DE VUE IMPRENABLE, un CALME et un CHARME RÉPUTÉ.
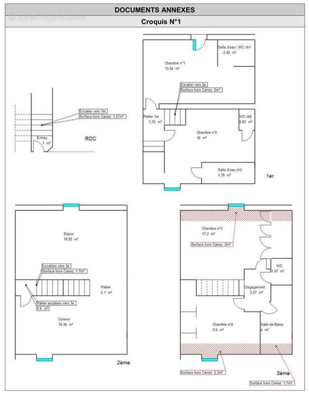
Cette propriété allie CHARME DANTAN et confort contemporain, le tout répartie sur 3 niveaux comme suit :
• Au 1er étage : 2 chambres accompagnées chacune de leur salle d’eau et wc (chambre parentale avec balconnet)
• Au 2ième : Une cuisine équipée et fonctionnelle ouverte sur salle à manger / un charmant salon doté d'un POÊLE À BOIS FONCTIONNEL
• Au 3ième : 2 chambres supplémentaires, un WC indépendant et une grande salle de bain familiale Un AGENCEMENT IDÉAL pour une vie de famille harmonieuse ou pour recevoir en toute convivialité, dans un cadre mêlant AUTHENTICITÉ ET MODERNITÉ.

CERISE sur le GÂTEAUX : Vue PANORAMIQUE sur les COLLINES et les toits du village.

UNE CAVE d'environ 30m2 peut-être vendue EN SUPPLÉMENT du prix.
Cette annonce vous est proposée par BICR - SAS - NoRSAC: 832 560 635, Enregistré à de - Annonce rédigée et publiée par un Agent Mandataire -
Voir plus

Référence: 824
Honoraires à la charge du vendeur.
Barème des honoraires
DPE
A
B
C
D
E
F
G
GES
A
B
C
D
E
F
G

Prêt immobilier

Vous souhaitez connaître votre capacité d’emprunt et trouver le meilleur crédit immobilier ?
Réaliser une simulation gratuite

Appartement à CASTELLAR
Appartement à CASTELLAR
Appartement à CASTELLAR
Appartement à CASTELLAR
Appartement à CASTELLAR
Appartement à CASTELLAR
Appartement à CASTELLAR
Appartement à CASTELLAR
Appartement à CASTELLAR
Appartement à CASTELLAR
Appartement à CASTELLAR
Appartement à CASTELLAR
Appartement à CASTELLAR
Appartement à CASTELLAR
Appartement à CASTELLAR
Appartement à CASTELLAR
Appartement à CASTELLAR
Appartement à CASTELLAR
Appartement à CASTELLAR
Appartement à CASTELLAR
Appartement à CASTELLAR
Ce site est protégé par reCAPTCHA la Politique de confidentialité et les Conditions d’utilisation de Google s’appliquent.
Obtenir un prêt immobilier au meilleur taux ?

En poursuivant votre navigation sans modifier vos paramètres, vous acceptez l'utilisation de cookies susceptibles de réaliser des statistiques de visite. Cliquez ici pour plus d'informations