Bénéficiez des services de nos partenaires locaux soigneusement sélectionnés
pour vous accompagner dans votre parcours d'achat immobilier

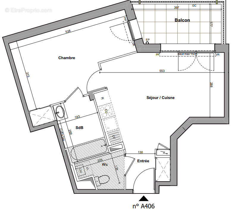
Appartement t2 nantes - saint donatien

— Nantes 44300 —
232 000 €
46 m²
2 pièces

Nos partenaires locaux
L'Agence Locale vous propose à la vente ce T2 de 45m2 . Situé au coeur du quartier Saint-Donatien, dans un secteur privilégiée au sein d'un quartier familial et recherché. A proximité immédiate des commerces, des transports en commun, des espaces verts et autres commodités du quotidien. Ce T2 se compose d'un séjour ouvert sur une cuisine équipée, chambre spacieuse et un balcon de 6.58 m2. Une place de parking en sous sol est présente afin de sécuriser votre véhicule.

Prêt immobilier

Vous souhaitez connaître votre capacité d’emprunt et trouver le meilleur crédit immobilier ?
Réaliser une simulation gratuite

Appartement à NANTES
Appartement à NANTES
Ce site est protégé par reCAPTCHA la Politique de confidentialité et les Conditions d’utilisation de Google s’appliquent.
Obtenir un prêt immobilier au meilleur taux ?

En poursuivant votre navigation sans modifier vos paramètres, vous acceptez l'utilisation de cookies susceptibles de réaliser des statistiques de visite. Cliquez ici pour plus d'informations