Bénéficiez des services de nos partenaires locaux soigneusement sélectionnés
pour vous accompagner dans votre parcours d'achat immobilier

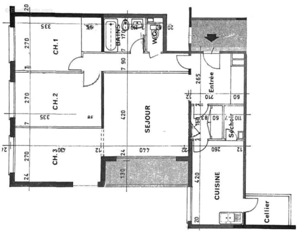
Aubervilliers - 4 pièces de 85,7 m² avec box - prix attractif

— Aubervilliers 93300 —
205 000 €
86 m²
4 pièces
parkingbalcon/terrasse

Nos partenaires locaux
A proximité immédiate du métro Fort d'Aubervilliers (ligne 7), au sein d'une résidence calme, arborée et soigneusement entretenue, découvrez ce spacieux appartement familial de 4 pièces, situé rue Danielle Casanova. Les points forts Surface de 85,73 m² bien distribuée - Séjour lumineux ouvrant sur un environnement verdoyant - Cuisine aménagée - Trois chambres aux beaux volumes - Salle de bains, WC séparés - Box privatif en sous-sol - Copropriété bien tenue et agréable Transports et commodités - Métro ligne 7 à environ 7?8 minutes à pied - Nombreuses lignes de bus à proximité - Accès rapide aux principaux axes urbains et commerces Travaux et potentiel L'appartement nécessite quelques travaux de remise au goût du jour, une occasion parfaite de créer un intérieur à votre image. Des photos de suggestion d'aménagement sont disponibles pour vous aider à vous projeter et visualiser le potentiel d'optimisation. Un prix nettement en dessous du marché Affiché à 205 000 euros, soit environ 2 390 euros/m², ce bien se situe bien en dessous du prix moyen du secteur, ce qui en fait une opportunité rare, notamment pour un investissement locatif. A retenir Un appartement spacieux, fonctionnel, bien situé et proposé à un prix particulièrement attractif. Une visite s'impose pour apprécier pleinement son potentiel. Copropriété de 170 lots ().
Voir plus

Honoraires à la charge du vendeur.
DPE
A
B
C
D
E
F
G
GES
A
B
C
D
E
F
G

Prêt immobilier

Vous souhaitez connaître votre capacité d’emprunt et trouver le meilleur crédit immobilier ?
Réaliser une simulation gratuite

Appartement à AUBERVILLIERS
Appartement à AUBERVILLIERS
Appartement à AUBERVILLIERS
Appartement à AUBERVILLIERS
Appartement à AUBERVILLIERS
Appartement à AUBERVILLIERS
Appartement à AUBERVILLIERS
Appartement à AUBERVILLIERS
Appartement à AUBERVILLIERS
Appartement à AUBERVILLIERS
Appartement à AUBERVILLIERS
Appartement à AUBERVILLIERS
Appartement à AUBERVILLIERS
Ce site est protégé par reCAPTCHA la Politique de confidentialité et les Conditions d’utilisation de Google s’appliquent.
Obtenir un prêt immobilier au meilleur taux ?

En poursuivant votre navigation sans modifier vos paramètres, vous acceptez l'utilisation de cookies susceptibles de réaliser des statistiques de visite. Cliquez ici pour plus d'informations