Bénéficiez des services de nos partenaires locaux soigneusement sélectionnés
pour vous accompagner dans votre parcours d'achat immobilier

Projet de résidence hôtelière

— La Seyne-Sur-Mer 83500 —
650 000 €
1 820 m²

Nos partenaires locaux
Thierry OUSTRAIN vous propose ce bien :

Thierry OUSTRAIN vous propose ce bien :

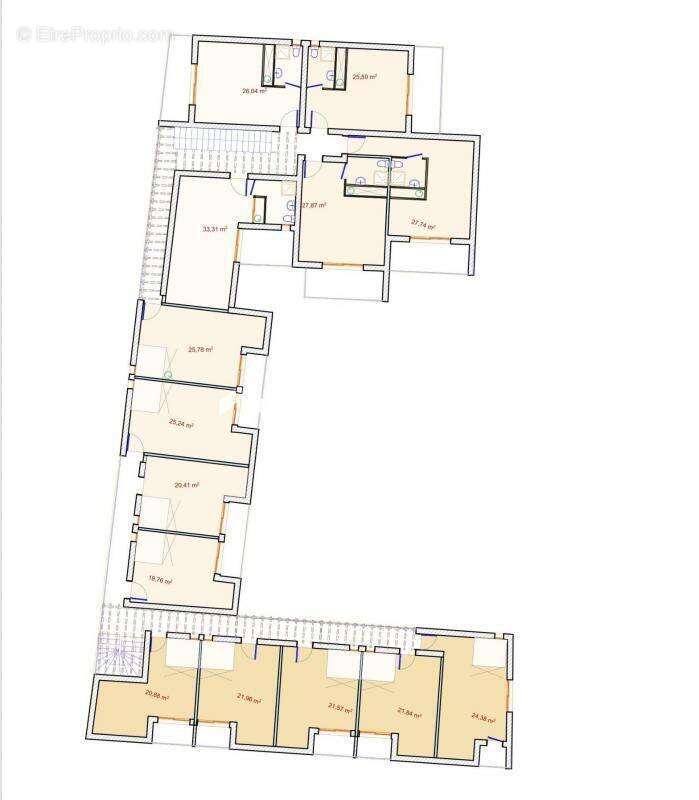
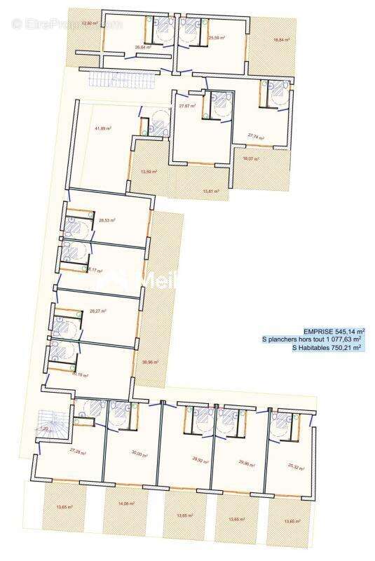
Terrain arboré pour projet d'édification d'une résidence hôtelière de type résidence services.

Ce projet prévoit la création de 750 m² habitables en R0 et en R+1 dans une zone résidentielle au calme proche de la commune de Six-Fours qui peut se répartir en 28 logements dotés de terrasse en RDC ou de balcons en R+1.

La souplesse de cette formule permet au gestionnaire une optimisation aisée de l'occupation des logements. Ces logements peuvent accueillir des seniors, des voyageurs , des touristes, des professionnels amenés à effectuer un chantier localement et toute personne souhaitant accéder à un logement équipé, au calme et proche du centre commercial ou de la ville de Six-Fours.

Autoroute à 8 minutes et plage à 9 minutes.

Plan de masse et toute autre question sur demande. Pré-étude favorable auprès des services de l'urbanisme.

Idéal pour investisseur ne souhaitant pas laisser dormir sa trésorerie sur des comptes bancaires.

Les informations sur les risques auxquels ce bien est exposé sont disponibles sur le site Géorisques : www.georisques.gouv.fr\nLes informations sur les risques auxquels ce bien est exposé sont disponibles sur le site Géorisques : www.georisques.gouv.fr
Voir plus

Référence: MB8287604685

Prêt immobilier

Vous souhaitez connaître votre capacité d’emprunt et trouver le meilleur crédit immobilier ?
Réaliser une simulation gratuite

Terrain à LA SEYNE-SUR-MER
Terrain à LA SEYNE-SUR-MER
Terrain à LA SEYNE-SUR-MER
Terrain à LA SEYNE-SUR-MER
Ce site est protégé par reCAPTCHA la Politique de confidentialité et les Conditions d’utilisation de Google s’appliquent.
Obtenir un prêt immobilier au meilleur taux ?

En poursuivant votre navigation sans modifier vos paramètres, vous acceptez l'utilisation de cookies susceptibles de réaliser des statistiques de visite. Cliquez ici pour plus d'informations