Bénéficiez des services de nos partenaires locaux soigneusement sélectionnés
pour vous accompagner dans votre parcours d'achat immobilier

Villa de charme surplombant le cap martin et la mer avec piscine et de nombreux parkings

— Roquebrune-Cap-Martin 06190 —
2 500 000 €
167 m² / 955 m²
8 pièces
parkingbalcon/terrassejardinpiscine

Nos partenaires locaux
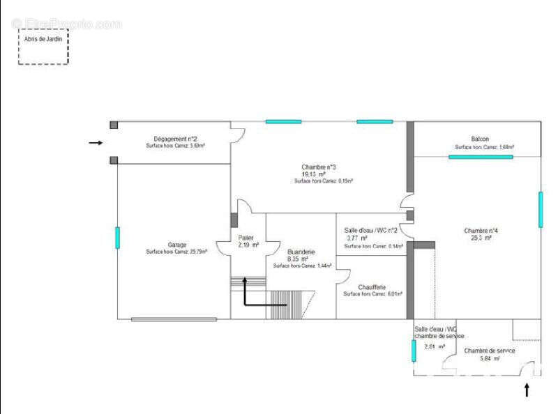
Votre agence Laforêt Roquebrune Cap Martin vous propose : Une magnifique villa de 6 pièces, située dans un environnement calme et verdoyant, à seulement quelques kilomètres de Monaco ? Monte-Carlo. La maison se compose, au niveau principal, d'une entrée, d'un séjour lumineux exposé sud-ouest, d'une cuisine indépendante, ainsi que de deux chambres ouvrant sur une terrasse avec vue dégagée sur la mer et le Cap Martin. Ce niveau comprend également deux salles de bains avec WC, dont une attenante à une chambre. En rez-de-jardin, vous trouverez une chambre de 11 m², une seconde chambre spacieuse de 25 m², une salle de bains, une buanderie et une chaufferie. Une autre chambre avec sa propre salle d'eau et un accès indépendant par l'arrière de la maison offre une flexibilité d'usage (chambre d'amis, bureau, etc.). A l'extérieur, vous profiterez d'une piscine dans un cadre discret et paisible. A noter : un potentiel d'agrandissement est envisageable, sous réserve des règles d'urbanisme en vigueur (PLU), offrant ainsi une belle opportunité d'optimisation ou d'évolution du bien selon vos projets. L'avis Laforêt : Un emplacement privilégié, offrant de nombreuses possibilités d'aménagement pour un acquéreur souhaitant valoriser le potentiel du bien. C'est seulement chez Laforêt ! www.laforet.com/capmartin
Voir plus

Référence: 266
Honoraires à la charge du vendeur.
Barème des honoraires
DPE
A
B
C
D
E
F
G
GES
A
B
C
D
E
F
G

Prêt immobilier

Vous souhaitez connaître votre capacité d’emprunt et trouver le meilleur crédit immobilier ?
Réaliser une simulation gratuite

Maison à ROQUEBRUNE-CAP-MARTIN
Maison à ROQUEBRUNE-CAP-MARTIN
Maison à ROQUEBRUNE-CAP-MARTIN
Maison à ROQUEBRUNE-CAP-MARTIN
Maison à ROQUEBRUNE-CAP-MARTIN
Maison à ROQUEBRUNE-CAP-MARTIN
Maison à ROQUEBRUNE-CAP-MARTIN
Maison à ROQUEBRUNE-CAP-MARTIN
Maison à ROQUEBRUNE-CAP-MARTIN
Maison à ROQUEBRUNE-CAP-MARTIN
Maison à ROQUEBRUNE-CAP-MARTIN
Maison à ROQUEBRUNE-CAP-MARTIN
Maison à ROQUEBRUNE-CAP-MARTIN
Maison à ROQUEBRUNE-CAP-MARTIN
Maison à ROQUEBRUNE-CAP-MARTIN
Maison à ROQUEBRUNE-CAP-MARTIN
Maison à ROQUEBRUNE-CAP-MARTIN
Maison à ROQUEBRUNE-CAP-MARTIN
Ce site est protégé par reCAPTCHA la Politique de confidentialité et les Conditions d’utilisation de Google s’appliquent.
Obtenir un prêt immobilier au meilleur taux ?

En poursuivant votre navigation sans modifier vos paramètres, vous acceptez l'utilisation de cookies susceptibles de réaliser des statistiques de visite. Cliquez ici pour plus d'informations