Bénéficiez des services de nos partenaires locaux soigneusement sélectionnés
pour vous accompagner dans votre parcours d'achat immobilier

Maison familiale à fort potentiel

— Mourmelon-Le-Grand 51400 —
242 000 €
193 m² / 2 330 m²
8 pièces
parking

Nos partenaires locaux
Sur la commune de Mourmelon Le Grand, à 20 minutes de Châlons en Champagne et 25 minutes de Reims avec la proximité des écoles, des parcs, du collège, des commerces, médecins, pharmacies, dans une commune où il fait bon vivre.

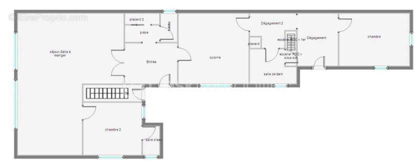
Venez découvrir cette jolie maison familiale à fort potentiel avec travaux d'environ 193m² habitables érigée sur une parcelle de 2330m².

Vous y découvrirez une entrée, une pièce, un WC séparé, une cave, un salon - salle à manger très lumineux d'environ 46m², une première chambre avec une salle d'eau et WC, une cuisine, une salle de douche et une deuxième chambre, ce bien bénéficie du confort du plain-pied.

A l'étage vous profiterez d'une pièce palière pouvant faire office de bureau, un WC séparé avec point d'eau, trois grandes chambres et une partie grenier pouvant être aménager.

En extérieur vous bénéficierez d'un jardin bucolique et d'un garage d'environ 40m².

Les informations complémentaires:

- tout à l'égout
- volets motorisés
- ballon électrique 150 L
- taxe foncière 1982e par an

Envie de découvrir ce bien à fort potentiel je vous invite à me contacter afin d'organiser une visite.

Cette annonce référence 303716 vous est présentée par votre agent commercial BSK Immobilier GWENAELLE DEFRANCE (EI) immatriculé au RSAC de CHALONS-EN-CHAMPAGNE (51000) sous le numéro 8913[Coordonnées masquées].

Prix du bien : 242 000,00 €
Les honoraires d'agence sont à la charge du vendeur.

A propos des performances énergétiques :
Date de réalisation du diagnostic énergétique : 05/07/2024
Score DPE : 291 kWhEP/m²/an
Score GES : 48 kgepCO2/m²/an
Montant estimé des dépenses annuelles d'énergie pour un usage standard : entre 5540.00 € et 7530.00 € par an. Prix moyens des énergies indexés sur l'année 2021 (abonnements compris).

Les informations sur les risques auxquels ce bien est exposé sont disponibles sur le site Géorisques : www.georisques.gouv.fr
Voir plus

Référence: 303716
Honoraires à la charge du vendeur.
DPE
A
B
C
D
E
F
G
GES
A
B
C
D
E
F
G

Prêt immobilier

Vous souhaitez connaître votre capacité d’emprunt et trouver le meilleur crédit immobilier ?
Réaliser une simulation gratuite

Maison à MOURMELON-LE-GRAND
Maison à MOURMELON-LE-GRAND
Maison à MOURMELON-LE-GRAND
Maison à MOURMELON-LE-GRAND
Maison à MOURMELON-LE-GRAND
Maison à MOURMELON-LE-GRAND
Maison à MOURMELON-LE-GRAND
Maison à MOURMELON-LE-GRAND
Maison à MOURMELON-LE-GRAND
Maison à MOURMELON-LE-GRAND
Maison à MOURMELON-LE-GRAND
Maison à MOURMELON-LE-GRAND
Maison à MOURMELON-LE-GRAND
Maison à MOURMELON-LE-GRAND
Maison à MOURMELON-LE-GRAND
Maison à MOURMELON-LE-GRAND
Maison à MOURMELON-LE-GRAND
Maison à MOURMELON-LE-GRAND
Maison à MOURMELON-LE-GRAND
Maison à MOURMELON-LE-GRAND
Maison à MOURMELON-LE-GRAND
Maison à MOURMELON-LE-GRAND
Maison à MOURMELON-LE-GRAND
Ce site est protégé par reCAPTCHA la Politique de confidentialité et les Conditions d’utilisation de Google s’appliquent.
Obtenir un prêt immobilier au meilleur taux ?

En poursuivant votre navigation sans modifier vos paramètres, vous acceptez l'utilisation de cookies susceptibles de réaliser des statistiques de visite. Cliquez ici pour plus d'informations