Bénéficiez des services de nos partenaires locaux soigneusement sélectionnés
pour vous accompagner dans votre parcours d'achat immobilier

Maison de ville avec dépendance de 46 m2

— Cannes 06400 —
750 000 €
122 m²
5 pièces

Nos partenaires locaux
Venez découvrir cette jolie maison de ville de 121 m2 avec dépendance, située dans un lotissement très calme et résidentiel, à seulement 15 minutes à pied de la rue d'Antibes et proche des écoles.


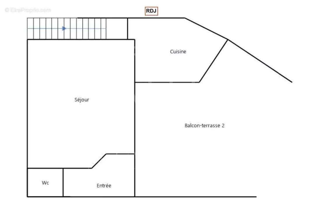
La maison principale totalisant 75,50 m2 est agencée ainsi :

- Au Rez-de-jardin : séjour et cuisine séparée donnant sur une belle terrasse plein SUD avec cuisine d'été et barbecue, agrémentée d'un jardin, pour environ 50 m².
WC et petit coin buanderie.

- Au 1er étage : 2 chambres dont une profitant d'un balcon à la vue dégagée (verdure), et une salle de bains.


La maison bénéficie aussi d’une dépendance type 2 pièces de 46 m² avec un accès privé via sa propre terrasse : idéal pour y loger de la famille ou pour un investissement locatif.

Stationnement sécurisé.
Possibilité de retrouver un garage fermé dans la partie dépendance.

Les + :
• Quartier recherché & calme
• Maison en excellent état (rénovée en 2017)
• Commerces à proximité
• Proche Ecoles, crèches et lycées

Plus de photos sur demande.

Les informations sur les risques auxquels ce bien est exposé sont disponibles sur le site Géorisques : georisques.gouv.fr
Voir plus

Référence: W294 SC
DPE
A
B
C
D
E
F
G
GES
A
B
C
D
E
F
G

Prêt immobilier

Vous souhaitez connaître votre capacité d’emprunt et trouver le meilleur crédit immobilier ?
Réaliser une simulation gratuite

Maison à CANNES
Maison à CANNES
Maison à CANNES
Maison à CANNES
Maison à CANNES
Maison à CANNES
Maison à CANNES
Maison à CANNES
Maison à CANNES
Maison à CANNES
Maison à CANNES
Maison à CANNES
Maison à CANNES
Maison à CANNES
Maison à CANNES
Maison à CANNES
Maison à CANNES
Maison à CANNES
Maison à CANNES
Maison à CANNES
Maison à CANNES
Maison à CANNES
Ce site est protégé par reCAPTCHA la Politique de confidentialité et les Conditions d’utilisation de Google s’appliquent.
Obtenir un prêt immobilier au meilleur taux ?

En poursuivant votre navigation sans modifier vos paramètres, vous acceptez l'utilisation de cookies susceptibles de réaliser des statistiques de visite. Cliquez ici pour plus d'informations