Bénéficiez des services de nos partenaires locaux soigneusement sélectionnés
pour vous accompagner dans votre parcours d'achat immobilier

Appartement créteil 5 pièces 97 m2

— Creteil 94000 —
327 000 €
97 m²
5 pièces
parkingbalcon/terrasse

Nos partenaires locaux
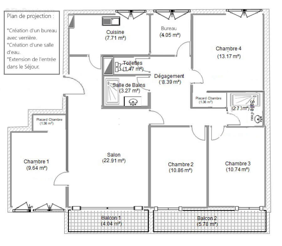
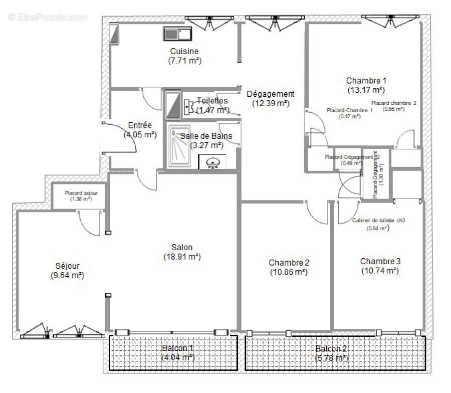
Situé au 2ème étage d'une copropriété calme et arborée, ce bien familiale en double exposition idéalement situé à 150m du village se compose d'une entrée, d'une cuisine équipée, d'un grand séjour avec balcon et d'une salle à manger (modulable en chambre avec penderie). La partie nuit s'organise autour d'un dégagement ,d'une salle d'eau, d'un WC indépendant, d'une suite parentale avec dressing et d'une salle d'eau privative (devis disponible à l'agence) et de deux autres grandes chambres avec balcon partager. Un bureau de 4m² avec verrière peut s'ajouter à la partie nuit. Une grande cave de 15m² et une place de stationnement en sous-sol complètent ce bien. Copropriété de 320 lots - dont 150 lots habitation. (Pas de procédure en cours). Charges annuelles : 4200 euros. Jean-Baptiste Tronca (EI) Agent Commercial - Numéro RSAC : 933 754 673 - CRETEIL.
Voir plus

Référence: 1663
Bien en copropriété. Nombre de lots : 320. Charges de copropriété : 4200 €.
Honoraires à la charge du vendeur.
Barème des honoraires
DPE
A
B
C
D
E
F
G
GES
A
B
C
D
E
F
G

Prêt immobilier

Vous souhaitez connaître votre capacité d’emprunt et trouver le meilleur crédit immobilier ?
Réaliser une simulation gratuite

Appartement à CRETEIL
Appartement à CRETEIL
Appartement à CRETEIL
Appartement à CRETEIL
Appartement à CRETEIL
Appartement à CRETEIL
Appartement à CRETEIL
Appartement à CRETEIL
Appartement à CRETEIL
Appartement à CRETEIL
Appartement à CRETEIL
Appartement à CRETEIL
Appartement à CRETEIL
Ce site est protégé par reCAPTCHA la Politique de confidentialité et les Conditions d’utilisation de Google s’appliquent.
Obtenir un prêt immobilier au meilleur taux ?

En poursuivant votre navigation sans modifier vos paramètres, vous acceptez l'utilisation de cookies susceptibles de réaliser des statistiques de visite. Cliquez ici pour plus d'informations