Bénéficiez des services de nos partenaires locaux soigneusement sélectionnés
pour vous accompagner dans votre parcours d'achat immobilier

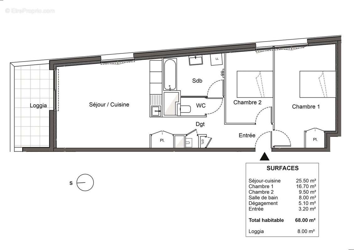
Appartement 68m² à merignac

— Merignac 33700 —
314 000 €
68 m²
3 pièces
parkingbalcon/terrasseascenseuraccès handicapé

Nos partenaires locaux
Bordeaux-Mérignac, beau T3 de 68 m², au troisième étage d’une résidence de 52 logements, répartis sur trois bâtiments. Il se compose d’une entrée, d’une pièce de vie ouvrant sur une belle loggia, de deux chambres, d’une salle de bains et d’un wc. Conforme à la norme BBC-RT2012, il est équipé d’un chauffage individuel au gaz. Il dispose d’une place de stationnement au sous-sol. Les commerces sont au pied de la résidence ainsi que le tram A qui permet d’accéder rapidement au centre-ville de Bordeaux, ou à l’aéroport. Écoles, collège et lycée sont accessible à pied. Il sera disponible en décembre 2026. Taxe foncière 900euros, charges mensuelles 90 euros. Les honoraires d’agence sont à la charge du vendeur. Les risques auxquels ce bien est exposé sont disponibles sur le site Géorisques: www.georisque.gouv.fr
Voir plus

Référence: 99
Bien en copropriété. Nombre de lots : 52. Charges de copropriété : 1080 €.
Honoraires à la charge du vendeur.
Barème des honoraires

Prêt immobilier

Vous souhaitez connaître votre capacité d’emprunt et trouver le meilleur crédit immobilier ?
Réaliser une simulation gratuite

Appartement à MERIGNAC
Appartement à MERIGNAC
Appartement à MERIGNAC
Appartement à MERIGNAC
Ce site est protégé par reCAPTCHA la Politique de confidentialité et les Conditions d’utilisation de Google s’appliquent.
Obtenir un prêt immobilier au meilleur taux ?

En poursuivant votre navigation sans modifier vos paramètres, vous acceptez l'utilisation de cookies susceptibles de réaliser des statistiques de visite. Cliquez ici pour plus d'informations