Bien à vendre

— Douai 59500 —
249 000 €
330 m²
11 pièces

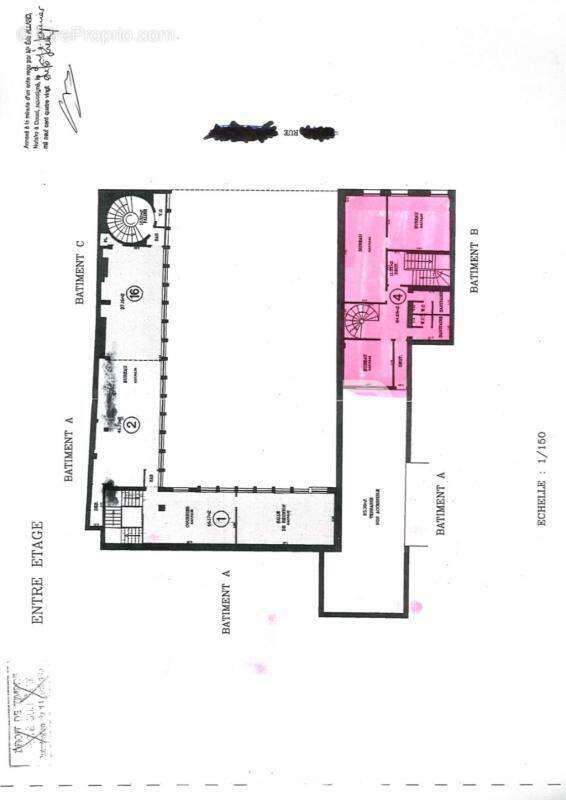
À Vendre, Matteo Jodry et Pulp Immobilier Douai vous proposent cet immeuble de 330 m2 sur trois étages, offre un emplacement idéal pour une activité professionnelle.

Caractéristiques principales:
- Surface totale: 33O m2 réparties sur trois étages.
-Idéal pour bureaux, professions libérales, centre médical ou formation.
-Belle visibilité grâce à sa localisation en centre-ville, à proximité immédiate des commerces, transports et parkings.
-Espaces lumineux et modulables
-Accès facile et bonne desserte

Points forts:
- Adresse stratégique au cœur de Douai.
-Forte fréquentation piétonne et routière.
-Bâtiment adapté à différentes activités professionnelles.

Une Opportunité rare sur le marché, à saisir rapidement!
Ce bien vous intéresse, contactez rapidement votre agence locale PULP-IMMOBILIER.

Nous avons hâte de découvrir votre projet.

Vous êtes propriétaires ?! Nous vous offrons l'estimation de votre bien.
Voir plus

Référence: dou16611

Prêt immobilier

Vous souhaitez connaître votre capacité d’emprunt et trouver le meilleur crédit immobilier ?
Réaliser une simulation gratuite

Appartement à DOUAI
Appartement à DOUAI
Appartement à DOUAI
Appartement à DOUAI
Appartement à DOUAI
Appartement à DOUAI
Appartement à DOUAI
Appartement à DOUAI
Appartement à DOUAI
Appartement à DOUAI
Appartement à DOUAI
Appartement à DOUAI
Appartement à DOUAI
Appartement à DOUAI
Appartement à DOUAI
Appartement à DOUAI
Appartement à DOUAI
Ce site est protégé par reCAPTCHA la Politique de confidentialité et les Conditions d’utilisation de Google s’appliquent.
Obtenir un prêt immobilier au meilleur taux ?

En poursuivant votre navigation sans modifier vos paramètres, vous acceptez l'utilisation de cookies susceptibles de réaliser des statistiques de visite. Cliquez ici pour plus d'informations