Bénéficiez des services de nos partenaires locaux soigneusement sélectionnés
pour vous accompagner dans votre parcours d'achat immobilier

Maison 80m² à miramas

— Miramas 13140 —
299 990 €
80 m² / 313 m²
4 pièces
parkingpiscine

Nos partenaires locaux
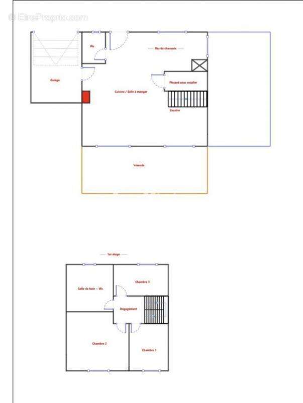
--- SOUS COMPROMIS --- 13140 - MIRAMAS - LES BARRIELES - 4 PIÈCES - 3 CHAMBRES - 80.0 M² - CHARMANTE MAISON AVEC PISCINE - AUCUN TRAVAUX - A VISITER SANS TARDER !

EffiCity, l'agence qui estime votre bien en ligne, vous propose cette charmante maison située dans le quartier paisible des Barrieles à Miramas. Nichée dans un environnement calme et recherché, cette demeure saura vous séduire par son caractère chaleureux et son agencement fonctionnel.

Érigée sur deux niveaux, la maison offre un espace de vie lumineux et convivial. Au rez-de-chaussée, vous découvrirez un salon accueillant, idéal pour se retrouver en famille ou entre amis. La cuisine équipée et ouverte sur la salle à manger vous permettra de préparer de délicieux repas tout en profitant de la compagnie de vos proches. Une véranda vient compléter ce bel espace de vie, offrant une pièce supplémentaire pour se détendre.

L'étage abrite l'espace nuit composé de trois chambres confortables, chacune offrant un espace de rangement intégré. Une salle d'eau moderne avec douche et WC complète cet étage.

En extérieur, un jardin soigné entoure la maison, offrant une piscine enterrée pour vous rafraîchir lors des journées ensoleillées. L'espace détente avec vue sur la piscine vous invite à la relaxation et à la convivialité.

Construite après 2006, cette maison bénéficie d'un bon état général. Les combles aménageables offrent un potentiel supplémentaire pour créer un espace selon vos besoins. Un stationnement intérieur est prévu pour votre véhicule.

Située à proximité des commodités et des commerces, cette maison représente une excellente opportunité à ne pas manquer.

Au prix attractif de 315 000€, cette maison offre un cadre de vie agréable dans un quartier tranquille et recherché de Miramas.

Contactez-moi dès maintenant au [Coordonnées masquées] pour plus d'informations ou pour organiser une visite. Venez découvrir sans plus attendre le charme et le confort de cette charmante maison à Miramas !
Les informations sur les risques auxquels ce bien est exposé sont disponibles sur le site Georisque : georisques. gouv. fr
Chrystelle Debray - EI - est Agent Commercial mandataire en immobilier, immatriculé au Registre Spécial des Agents Commerciaux du Tribunal de Commerce de Salon-de-Provence sous le n°909902165.
Siège social du mandant : effiCity, 48 avenue de Villiers - 75017 PARIS - Société par Actions Simplifiée, société au capital de 132 373,05 euros, immatriculée au RCS Paris 497 617 746 et titulaire de la Carte professionnelle CPI 75[Coordonnées masquées]02 025 - CCI Paris IDF - Caisse de Garantie : GALIAN Assurances 89 rue de la Boétie 75008 Paris
Voir plus

Référence: 191630
Honoraires à la charge du vendeur.
Barème des honoraires
DPE
A
B
C
D
E
F
G
GES
A
B
C
D
E
F
G

Prêt immobilier

Vous souhaitez connaître votre capacité d’emprunt et trouver le meilleur crédit immobilier ?
Réaliser une simulation gratuite

Maison à MIRAMAS
Maison à MIRAMAS
Maison à MIRAMAS
Maison à MIRAMAS
Maison à MIRAMAS
Maison à MIRAMAS
Maison à MIRAMAS
Maison à MIRAMAS
Maison à MIRAMAS
Maison à MIRAMAS
Maison à MIRAMAS
Maison à MIRAMAS
Maison à MIRAMAS
Maison à MIRAMAS
Maison à MIRAMAS
Maison à MIRAMAS
Maison à MIRAMAS
Ce site est protégé par reCAPTCHA la Politique de confidentialité et les Conditions d’utilisation de Google s’appliquent.
Obtenir un prêt immobilier au meilleur taux ?

En poursuivant votre navigation sans modifier vos paramètres, vous acceptez l'utilisation de cookies susceptibles de réaliser des statistiques de visite. Cliquez ici pour plus d'informations