Bénéficiez des services de nos partenaires locaux soigneusement sélectionnés
pour vous accompagner dans votre parcours d'achat immobilier

Terrain à bâtir à la londe-les-maures

— La Londe-Les-Maures 83250 —
349 000 €
2 070 m²

Nos partenaires locaux
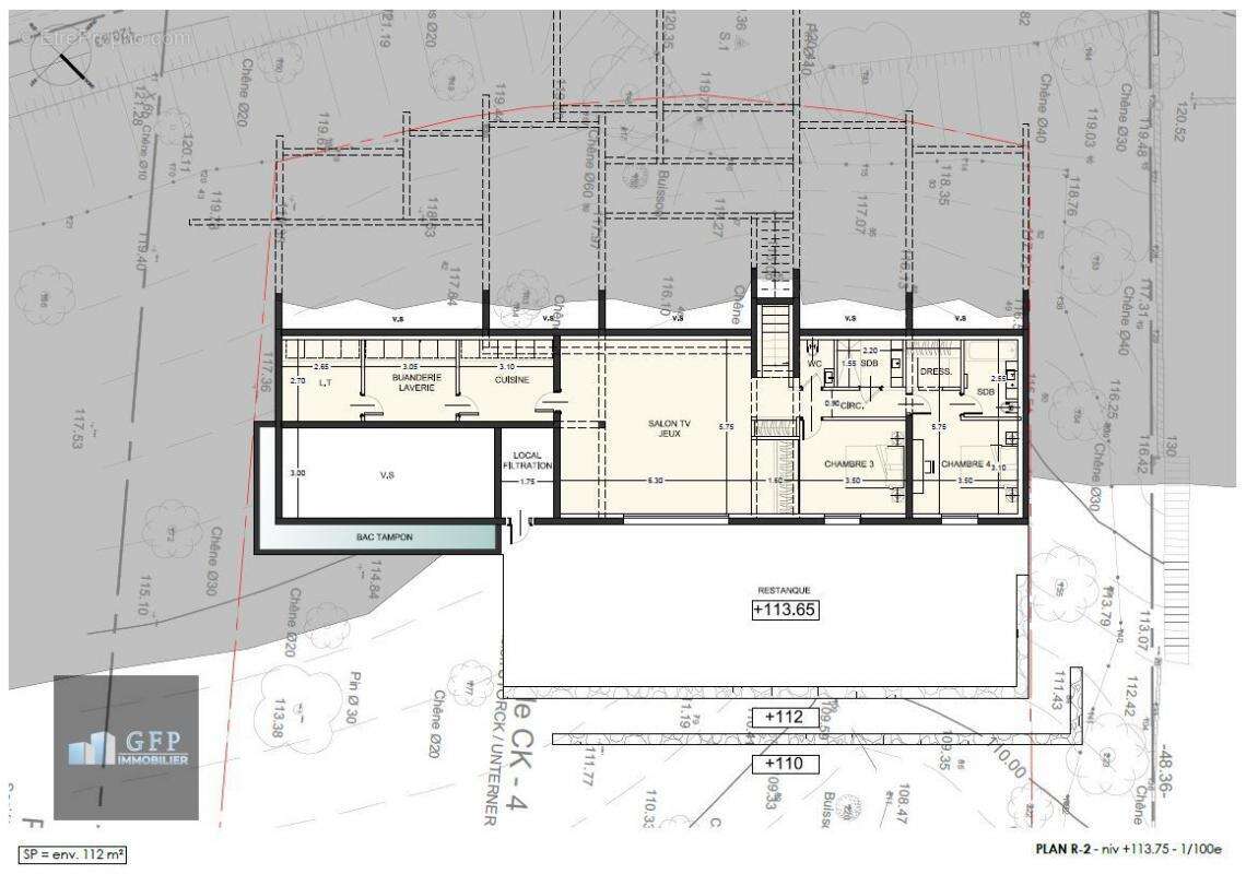
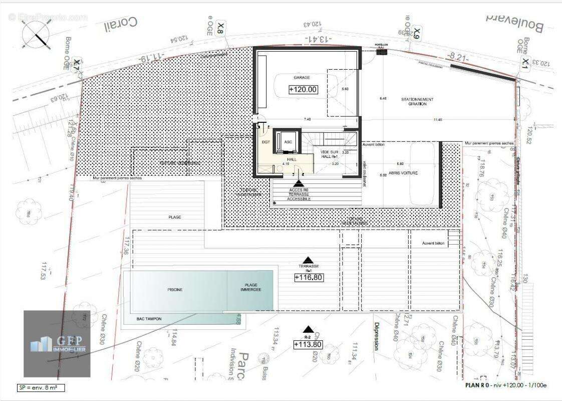
Terrain constructible – 2 070 m² – Domaine privé de Valcros, La Londe‑les‑Maures GFP Immobilier vous propose ce terrain constructible d'environ 2 070 m², orienté Est, situé dans le prestigieux domaine de Valcros avec vue dégagée sur le lac et golf 18 trous. Il bénéficie d'un permis validé pour une villa de 248 m² habitables incluant piscine, terrasses, garage de 37 m² et abri voiture de 25 m², avec possibilité de permis modificatif selon projet. En zone UFb, le terrain est non divisible, plan au sol libre (plain-pied uniquement), et peuvent être construits jusqu'à 400 m² selon le cahier des charges. L'étude de sol G1, la topographie et le bornage sont déjà réalisés. Ce secteur calme et naturel offre une proximité avec les plages, le golf et les commodités de La Londe‑les‑Maures. Contactez nous !
Voir plus

Référence: T-658
Honoraires d'agence de 4.76% à la charge de l'acquéreur

Prêt immobilier

Vous souhaitez connaître votre capacité d’emprunt et trouver le meilleur crédit immobilier ?
Réaliser une simulation gratuite

Terrain à LA LONDE-LES-MAURES
Terrain à LA LONDE-LES-MAURES
Terrain à LA LONDE-LES-MAURES
Terrain à LA LONDE-LES-MAURES
Terrain à LA LONDE-LES-MAURES
Terrain à LA LONDE-LES-MAURES
Terrain à LA LONDE-LES-MAURES
Terrain à LA LONDE-LES-MAURES
Terrain à LA LONDE-LES-MAURES
Terrain à LA LONDE-LES-MAURES
Terrain à LA LONDE-LES-MAURES
Terrain à LA LONDE-LES-MAURES
Terrain à LA LONDE-LES-MAURES
Terrain à LA LONDE-LES-MAURES
Terrain à LA LONDE-LES-MAURES
Terrain à LA LONDE-LES-MAURES
Terrain à LA LONDE-LES-MAURES
Terrain à LA LONDE-LES-MAURES
Terrain à LA LONDE-LES-MAURES
Ce site est protégé par reCAPTCHA la Politique de confidentialité et les Conditions d’utilisation de Google s’appliquent.
Obtenir un prêt immobilier au meilleur taux ?

En poursuivant votre navigation sans modifier vos paramètres, vous acceptez l'utilisation de cookies susceptibles de réaliser des statistiques de visite. Cliquez ici pour plus d'informations