Bénéficiez des services de nos partenaires locaux soigneusement sélectionnés
pour vous accompagner dans votre parcours d'achat immobilier

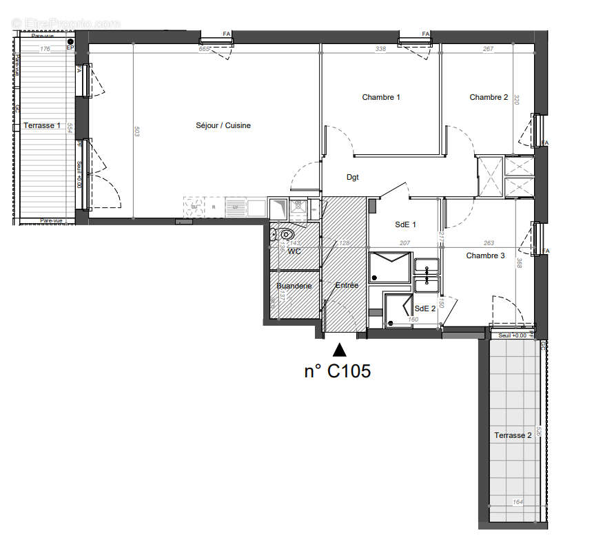
Appartement t4 nantes - saint joseph de porterie

— Nantes 44300 —
349 000 €
84 m²
4 pièces

Nos partenaires locaux
L'Agence Locale vous propose à la vente ce T4 de 84m2 avec deux terrasses d'un total de 17.17m2. Ce T4 récent situé au 1er étage se compose d'une cuisine ouverte sur le séjour, 3 spacieuses chambres. Ce T4 se trouve au sein du quartier Erdre-Porterie, espace de vie durable emblématique de Nantes. Lumineux et fonctionnel, il offre aussi un excellent potentiel locatif grâce à sa proximité des commerces, services et transports.

Prêt immobilier

Vous souhaitez connaître votre capacité d’emprunt et trouver le meilleur crédit immobilier ?
Réaliser une simulation gratuite

Appartement à NANTES
Appartement à NANTES
Ce site est protégé par reCAPTCHA la Politique de confidentialité et les Conditions d’utilisation de Google s’appliquent.
Obtenir un prêt immobilier au meilleur taux ?

En poursuivant votre navigation sans modifier vos paramètres, vous acceptez l'utilisation de cookies susceptibles de réaliser des statistiques de visite. Cliquez ici pour plus d'informations