Bénéficiez des services de nos partenaires locaux soigneusement sélectionnés
pour vous accompagner dans votre parcours d'achat immobilier

Maison au calme au grau d’agde espace, confort et vie en extérieur

— Agde 34300 —
680 000 €
205 m² / 1 000 m²
6 pièces
parkingbalcon/terrassejardin

Nos partenaires locaux
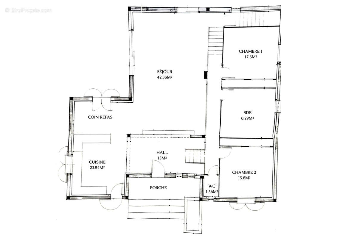
Située dans un quartier résidentiel recherché du Grau d’Agde, cette maison de 198 m2 offre un cadre de vie agréable à seulement quelques minutes des plages, des commerces et des écoles.
Édifiée sur un terrain de 1000 m2 entièrement clos et paysagé, elle séduit par ses beaux volumes et ses nombreux espaces extérieurs : une cuisine d’été avec bar, une salle de sport indépendante, un chalet d’invités et un forage. Le terrain, piscinable, permet d’aménager un véritable espace détente selon vos envies.
À l’intérieur, le séjour cathédrale avec cheminée insert profite d’une belle luminosité et d’un volume rare. La cuisine ouverte s’intègre harmonieusement à la pièce de vie pour plus de convivialité et de confort au quotidien.
La maison principale comprend deux chambres, dont une avec dressing et l’autre avec solarium privatif, une salle d’eau avec douche à l’italienne et double vasque, ainsi qu’un WC séparé.
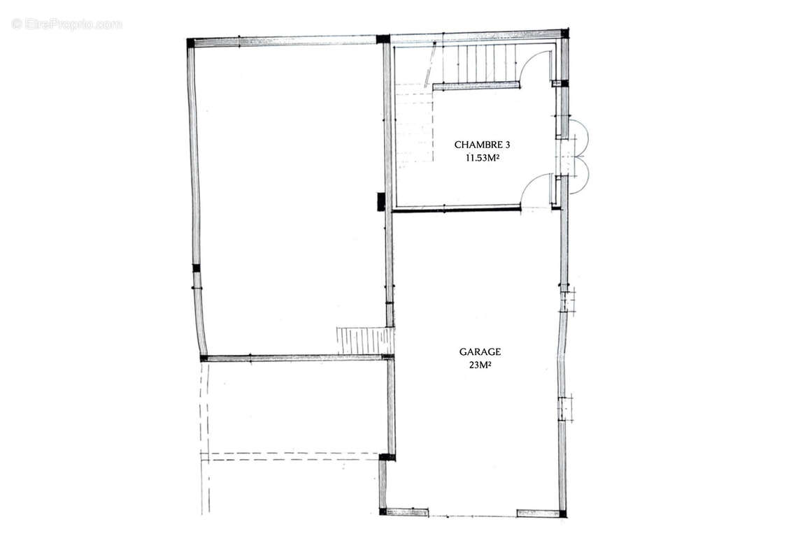
En rez-de-jardin, un espace indépendant de 43 m2 accueille une chambre, un bureau, une salle d’eau et un WC. Cet espace est idéal pour recevoir, télétravailler ou héberger un proche en toute autonomie. Un garage de 39 m2 avec atelier complète l’ensemble.
Une maison lumineuse et fonctionnelle, dans un environnement paisible à deux pas de la mer. Contactez-moi dès aujourd’hui pour organiser une visite. - Annonce rédigée et publiée par un Agent Mandataire -
Voir plus

Référence: 2826
Honoraires à la charge du vendeur.
Barème des honoraires
DPE
A
B
C
D
E
F
G
GES
A
B
C
D
E
F
G

Prêt immobilier

Vous souhaitez connaître votre capacité d’emprunt et trouver le meilleur crédit immobilier ?
Réaliser une simulation gratuite

Maison à AGDE
Maison à AGDE
Maison à AGDE
Maison à AGDE
Maison à AGDE
Maison à AGDE
Maison à AGDE
Maison à AGDE
Maison à AGDE
Maison à AGDE
Ce site est protégé par reCAPTCHA la Politique de confidentialité et les Conditions d’utilisation de Google s’appliquent.
Obtenir un prêt immobilier au meilleur taux ?

En poursuivant votre navigation sans modifier vos paramètres, vous acceptez l'utilisation de cookies susceptibles de réaliser des statistiques de visite. Cliquez ici pour plus d'informations