Maison 6 pièces – 150 m² – 5 chambres – jardin 618 m² – canal de l’ourcq

— Aulnay-Sous-Bois 93600 —
445 000 €
150 m² / 618 m²
8 pièces
parkingbalcon/terrasse

MAISON 6 PIÈCES – 150 M² – 5 CHAMBRES – JARDIN 618 M² – CANAL DE L'OURCQ

Située dans un quartier pavillonnaire très recherché, au calme et à deux pas du canal de l'Ourcq, et du tramway T4, venez découvrir cette maison familiale non mitoyenne de 150 m² habitable + sous-sol total de 70 m², édifiée sur une parcelle arborée de 618 m².

La maison se compose comme suit :

Au rez-de-chaussée surélevé :
- séjour lumineux
- cuisine séparée équipée et aménagée de 15 m²
- deux belles chambres de 15 m² et 16 m² avec vue sur le jardin
- salle de bains avec une baignoire et une cabine de douche
- WC séparés

À l'étage :
- 2 chambres de 17 m² et 18 m²
- une petite chambre (bureau, chambre d'enfant)
- Une salle de bains avec WC

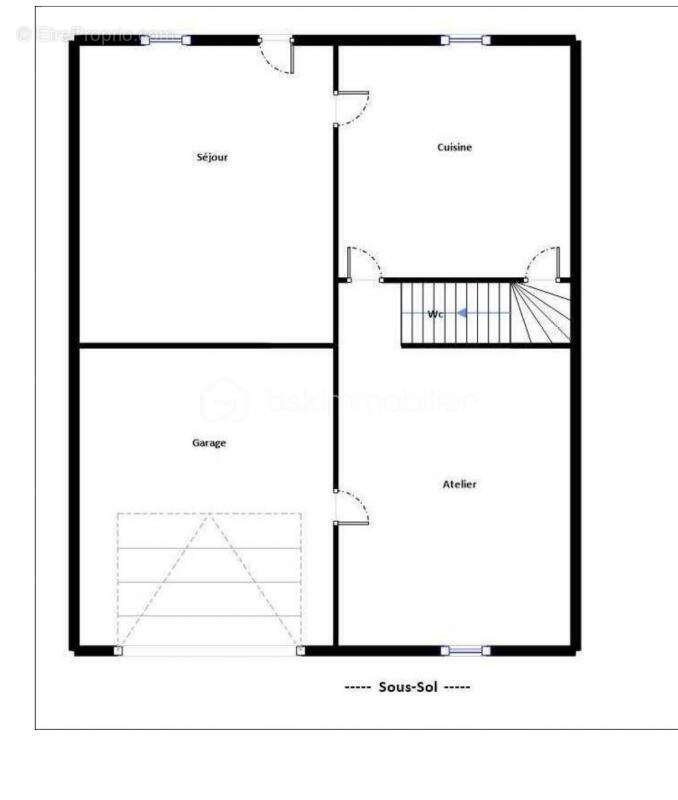
Le sous-sol total est entièrement aménagé :
- séjour de 20 m²
- une cuisine séparée de 13 m²
- une pièce pouvant servir de buanderie
- un garage de 22 m²

Un stationnement supplémentaire est possible devant la maison.

À l'extérieur, vous profiterez d'un magnifique jardin arboré, d'une terrasse paisible avec barbecue, d'un grand potager, d'arbres fruitiers et d'un accès direct au canal de l'Ourcq, idéal pour les balades à pied ou à vélo.

TRANSPORTS ET COMMODITES :
- Tramway T4 station L'Abbaye à 500 m (5 min à pied)
- Bus 613 et 637 à 200 m
- École primaire Pont de l'Union à 3 min à pied
- Collège Le Parc à 15 min à pied
- Lycée Henri Sellier à 3 min à pied
- Gare RER B accessible en 12 min par le bus
- Paris et Parc de la Villette accessibles en 20 minutes à vélo par le canal

Maison construite avec des matériaux solides, nécessitant quelques travaux de rafraîchissement. Elle offre un excellent potentiel pour créer un lieu de vie familial spacieux et chaleureux.

Secteur calme, verdoyant et très bien desservi. Bien rare sur le secteur.

Pour plus d'informations ou organiser une visite, contactez moi. Disponible 7 jours sur 7.

Cette annonce référence 304356 vous est présentée par votre agent commercial BSK Immobilier OIHIDA EL BAZ (EI) immatriculé au RSAC de BOBIGNY (93000) sous le numéro 9[Coordonnées masquées]011.

Prix du bien : 445 000,00 €
Les honoraires d'agence sont à la charge du vendeur.

A propos des performances énergétiques :
Date de réalisation du diagnostic énergétique : 14/04/2022
Score DPE : 245 kWhEP/m²/an
Score GES : 52 kgepCO2/m²/an
Montant estimé des dépenses annuelles d'énergie pour un usage standard : entre 2330.00 € et 3210.00 € par an. Prix moyens des énergies indexés sur l'année 2021 (abonnements compris).

Les informations sur les risques auxquels ce bien est exposé sont disponibles sur le site Géorisques : www.georisques.gouv.fr
Voir plus

Référence: 304356
Honoraires à la charge du vendeur.
DPE
A
B
C
D
E
F
G
GES
A
B
C
D
E
F
G

Prêt immobilier

Vous souhaitez connaître votre capacité d’emprunt et trouver le meilleur crédit immobilier ?
Réaliser une simulation gratuite

Maison à AULNAY-SOUS-BOIS
Maison à AULNAY-SOUS-BOIS
Maison à AULNAY-SOUS-BOIS
Maison à AULNAY-SOUS-BOIS
Maison à AULNAY-SOUS-BOIS
Maison à AULNAY-SOUS-BOIS
Maison à AULNAY-SOUS-BOIS
Maison à AULNAY-SOUS-BOIS
Maison à AULNAY-SOUS-BOIS
Maison à AULNAY-SOUS-BOIS
Maison à AULNAY-SOUS-BOIS
Maison à AULNAY-SOUS-BOIS
Maison à AULNAY-SOUS-BOIS
Maison à AULNAY-SOUS-BOIS
Maison à AULNAY-SOUS-BOIS
Maison à AULNAY-SOUS-BOIS
Maison à AULNAY-SOUS-BOIS
Maison à AULNAY-SOUS-BOIS
Ce site est protégé par reCAPTCHA la Politique de confidentialité et les Conditions d’utilisation de Google s’appliquent.
Obtenir un prêt immobilier au meilleur taux ?

En poursuivant votre navigation sans modifier vos paramètres, vous acceptez l'utilisation de cookies susceptibles de réaliser des statistiques de visite. Cliquez ici pour plus d'informations