Maison 59m² à domagne

— Domagne 35113 —
246 750 €
60 m² / 315 m²
2 pièces
parkingjardin

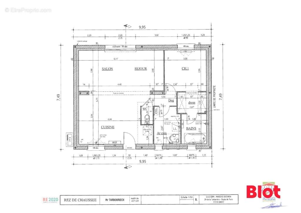
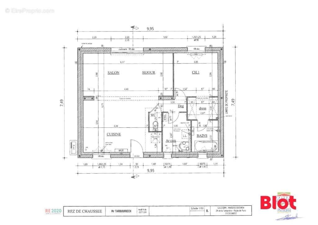
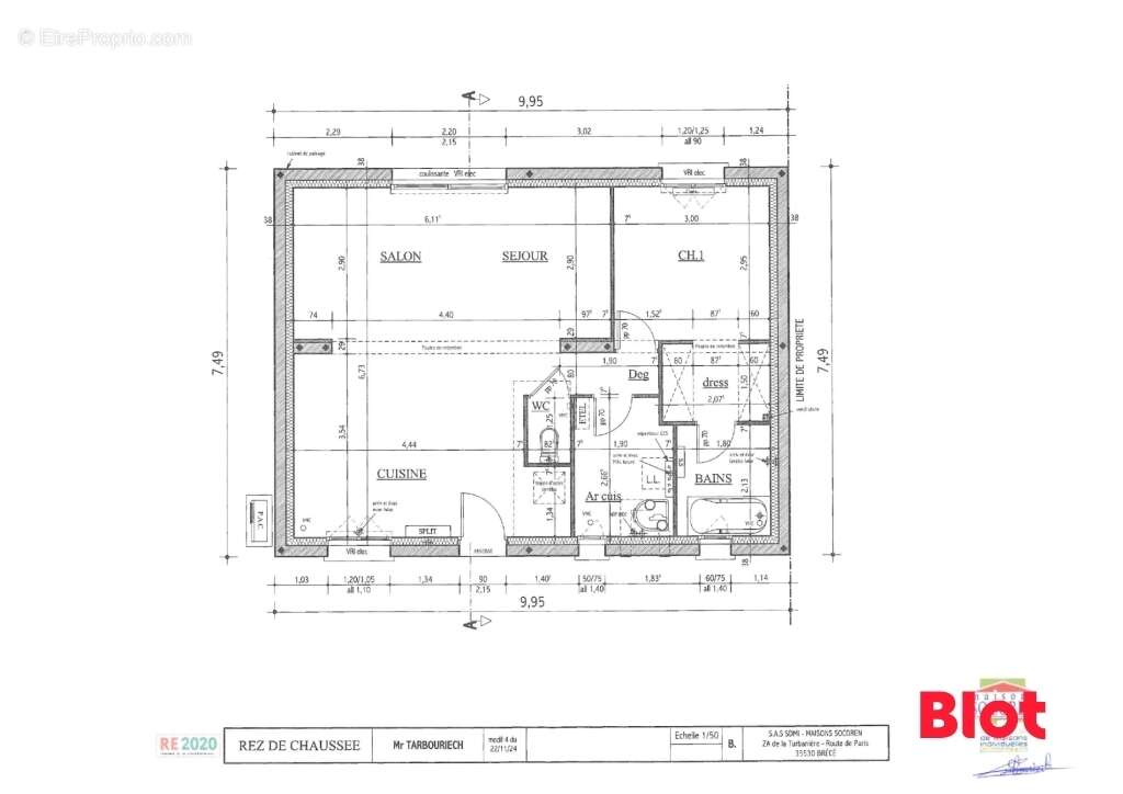
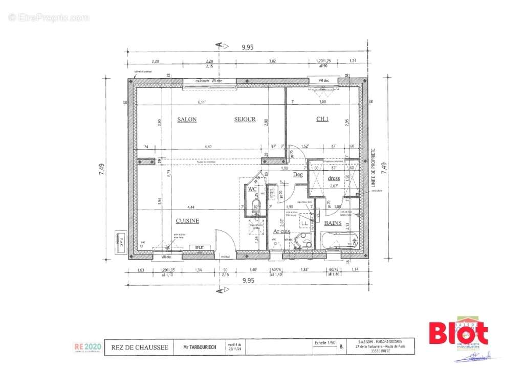
A vendre en EXCLUSIVITE chez Blot Maison neuve avec potentiel d'agrandissement d'un total possible de 100 m² à DOMAGNÉ À seulement 25 minutes de Rennes et 10 minutes de Châteaubourg, sur la commune dynamique de Domagné (écoles, commerces et services de proximité) découvrez cette maison neuve mitoyenne d'un côté, située au coeur du nouveau lotissement résidentiel ZAC du Poirier. Cette maison, déjà hors d'eau/hors d'air, sur terrain viabilisé est construite sous CCMI (Contrat de Construction d'une Maison Individuelle). Elle sera vendue en l'état défini par le CCMI. la fin des travaux du constructeur est prévue fin 2025/début 2026. Elle constitue une belle opportunité pour qui souhaite personnaliser son intérieur tout en profitant des avantages d'une construction neuve. Rez-de-chaussée (environ 60 m² habitables) : Séjour lumineux avec espace cuisine et arrière-cuisine (l'ensemble carrelé). Chambre avec dressing (parquet ou lino) Salle de bains et WC indépendant carrelée. Étage (40 m² supplémentaires aménageables): Plancher béton déjà réalisé Trémie prête pour accueillir un escalier Une fenêtre + trois Velux déjà posés. Vous disposez ainsi d'un potentiel total de près de 100 m² habitables. Caractéristiques techniques : Murs en béton creux, dalle sur vide sanitaire. Couverture en ardoise synthétique. Menuiseries extérieures PVC et aluminium. Volets roulants électriques sur la plupart des ouvertures. Pompe à chaleur Air/Air. ? Maison idéale pour un premier achat, une résidence principale évolutive ou un investissement locatif. Informations complémentaires à l'agence Blot de Chateaubourg : Appelez-nous ! Pas encore soumis au DPE. Visitez ce bien sur notre site Blot : Réf. 542JLM *Au prix de 246 750EUR FAI dont 5% d'honoraires à la charge de l'acquéreur - Prix net vendeur : 235 000EUR. Ce bien vous est présenté par l'agence BLOT IMMOBILIER CHATEAUBOURG - 1 Rue de Bel Air 35220 CHATEAUBOURG: [Coordonnées masquées] Les informations sur les risques naturels, miniers, ou technologiques, auxquels ces biens sont exposés, sont disponibles sur le site www.georisques.gouv.fr
Voir plus

Référence: 542JLM
Honoraires d'agence de 5% à la charge de l'acquéreur
Barème des honoraires

Prêt immobilier

Vous souhaitez connaître votre capacité d’emprunt et trouver le meilleur crédit immobilier ?
Réaliser une simulation gratuite

Maison à DOMAGNE
Maison à DOMAGNE
Maison à DOMAGNE
Maison à DOMAGNE
Maison à DOMAGNE
Maison à DOMAGNE
Maison à DOMAGNE
Maison à DOMAGNE
Maison à DOMAGNE
Maison à DOMAGNE
Maison à DOMAGNE
Maison à DOMAGNE
Maison à DOMAGNE
Maison à DOMAGNE
Maison à DOMAGNE
Maison à DOMAGNE
Maison à DOMAGNE
Maison à DOMAGNE
Maison à DOMAGNE
Maison à DOMAGNE
Maison à DOMAGNE
Maison à DOMAGNE
Ce site est protégé par reCAPTCHA la Politique de confidentialité et les Conditions d’utilisation de Google s’appliquent.
Obtenir un prêt immobilier au meilleur taux ?

En poursuivant votre navigation sans modifier vos paramètres, vous acceptez l'utilisation de cookies susceptibles de réaliser des statistiques de visite. Cliquez ici pour plus d'informations