Bénéficiez des services de nos partenaires locaux soigneusement sélectionnés
pour vous accompagner dans votre parcours d'achat immobilier

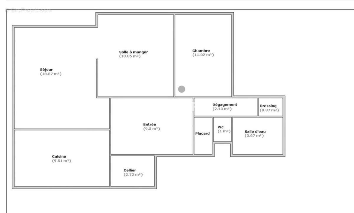
Appartement orléans 3 pièces 70 m²

— Orleans 45000 —
149 000 €
70 m²
3 pièces
balcon/terrasseascenseur

Nos partenaires locaux
Situé dans une résidence sécurisée, avec gardien et interphone, cet appartement lumineux vous offre un cadre de vie agréable au 6ème étage. Il se compose d'une entrée avec grands placards, d'un séjour ouvrant sur un balcon, d'une salle à manger pouvant facilement être transformée en deuxième chambre, d'une cuisine équipée avec cellier attenant, d'une chambre, de WC séparés et d'une salle d'eau. Ce bien inclut également une cave, et le stationnement est libre au sein de la résidence. Idéalement situé dans un environnement verdoyant et très recherché, à proximité du quai de Loire et de l'arrêt TRAM B. Copropriété de 488 lots - dont 162 lots habitation. (Pas de procédure en cours). Charges annuelles : 3100 euros. Emma LALANNE (EI) Agent Commercial - Numéro RSAC : 2032AC00234 - ORLEANS.
Voir plus

Référence: 259
Bien en copropriété. Nombre de lots : 488. Charges de copropriété : 3100 €.
Honoraires à la charge du vendeur.
Barème des honoraires
DPE
A
B
C
D
E
F
G
GES
A
B
C
D
E
F
G

Prêt immobilier

Vous souhaitez connaître votre capacité d’emprunt et trouver le meilleur crédit immobilier ?
Réaliser une simulation gratuite

Appartement à ORLEANS
Appartement à ORLEANS
Appartement à ORLEANS
Appartement à ORLEANS
Appartement à ORLEANS
Appartement à ORLEANS
Appartement à ORLEANS
Appartement à ORLEANS
Appartement à ORLEANS
Ce site est protégé par reCAPTCHA la Politique de confidentialité et les Conditions d’utilisation de Google s’appliquent.
Obtenir un prêt immobilier au meilleur taux ?

En poursuivant votre navigation sans modifier vos paramètres, vous acceptez l'utilisation de cookies susceptibles de réaliser des statistiques de visite. Cliquez ici pour plus d'informations